EasyManua.ls Logo

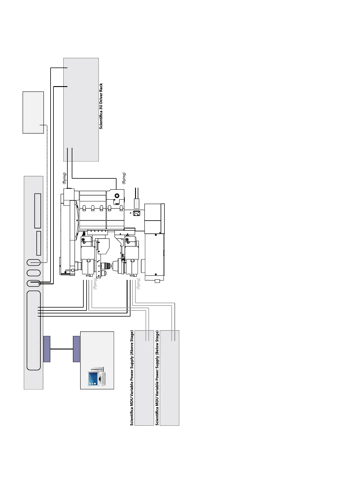
Scientifica MDU - Typical Electrical Configuration for Complete System

Default Icon
58 pages
Print Icon
To Next Page IconTo Next Page
To Next Page IconTo Next Page
To Previous Page IconTo Previous Page
To Previous Page IconTo Previous Page
Loading...
Page 41 of 58
5.1.1 Typical electrical configuration for complete system
AI (AnalogueInputs)
AI Ports:
AO APFI0
PFI0
User
Spring Terminal Block
3
68-position conne ctor
2
National Instruments BNC-2090A
Shutter Control Box
3
PC
Power
1
Power
1
Signal
1
(BNC)
(BNC)
(BNC)
(BNC)
(BNC)
NI Shielded
Cable
+ NI PCI-6110
DAQBoard
Signal
1
(BNC)
(Mini DIN)
(Mini DIN)
X galvo
SliceScope Z motorisation
(see separate schematic)
Y galvo
3 2 1 0
PMT A
X-driveY-drive
GalvoY (D-sub)
Galvo X (D-sub)
PMT B
PMT A
PMT B
0 1
1
(PCI board)
TTL
68-position connector
2
(rear panel of 2090A)
Figure AA: Typical electrical configuration for complete system

Table of Contents

Related product manuals