EasyManua.ls Logo

Seatex DPS 200 - Physical Description of DPS 12 U Cabinet

Seatex DPS 200
110 pages
Print Icon
To Next Page IconTo Next Page
To Next Page IconTo Next Page
To Previous Page IconTo Previous Page
To Previous Page IconTo Previous Page
Loading...
Seatex DPS 200 Installation Manual, rev. 4 Installation drawings
45
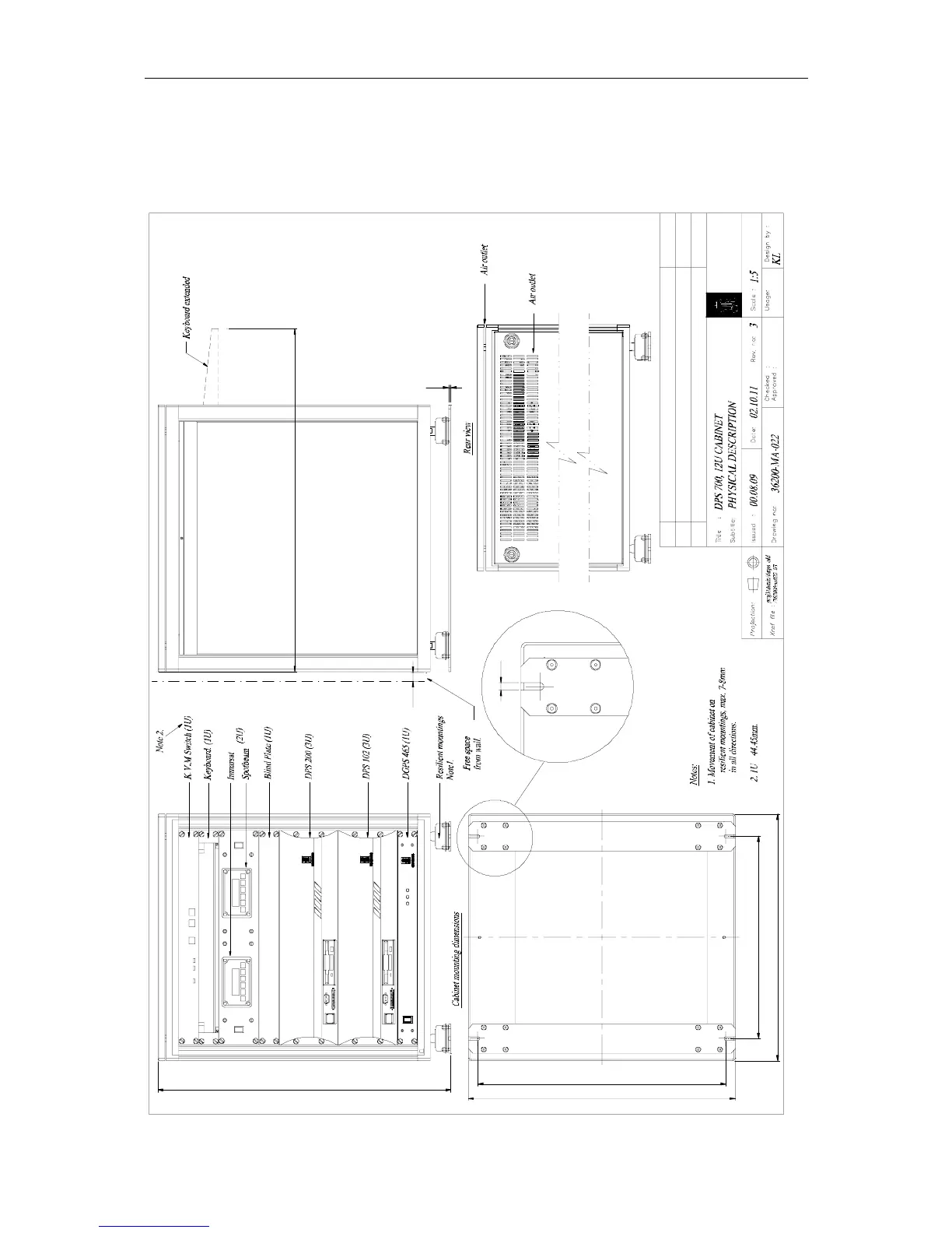
4.2 Physical description of DPS 12U cabinet
Drawing no. 36200-MA-022 rev. 3
20.0
Rev. Description Date, Sign.
770
600
558.0
454
553
8.5
6.0
660
SEATEX
KONGSBERG
FSP ref.: A11213500XRBRA0

Table of Contents

Related product manuals