EasyManua.ls Logo

Secutron MR-2300T - Installing the Adder Modules

Secutron MR-2300T
107 pages
Print Icon
To Next Page IconTo Next Page
To Next Page IconTo Next Page
To Previous Page IconTo Previous Page
To Previous Page IconTo Previous Page
Loading...
21
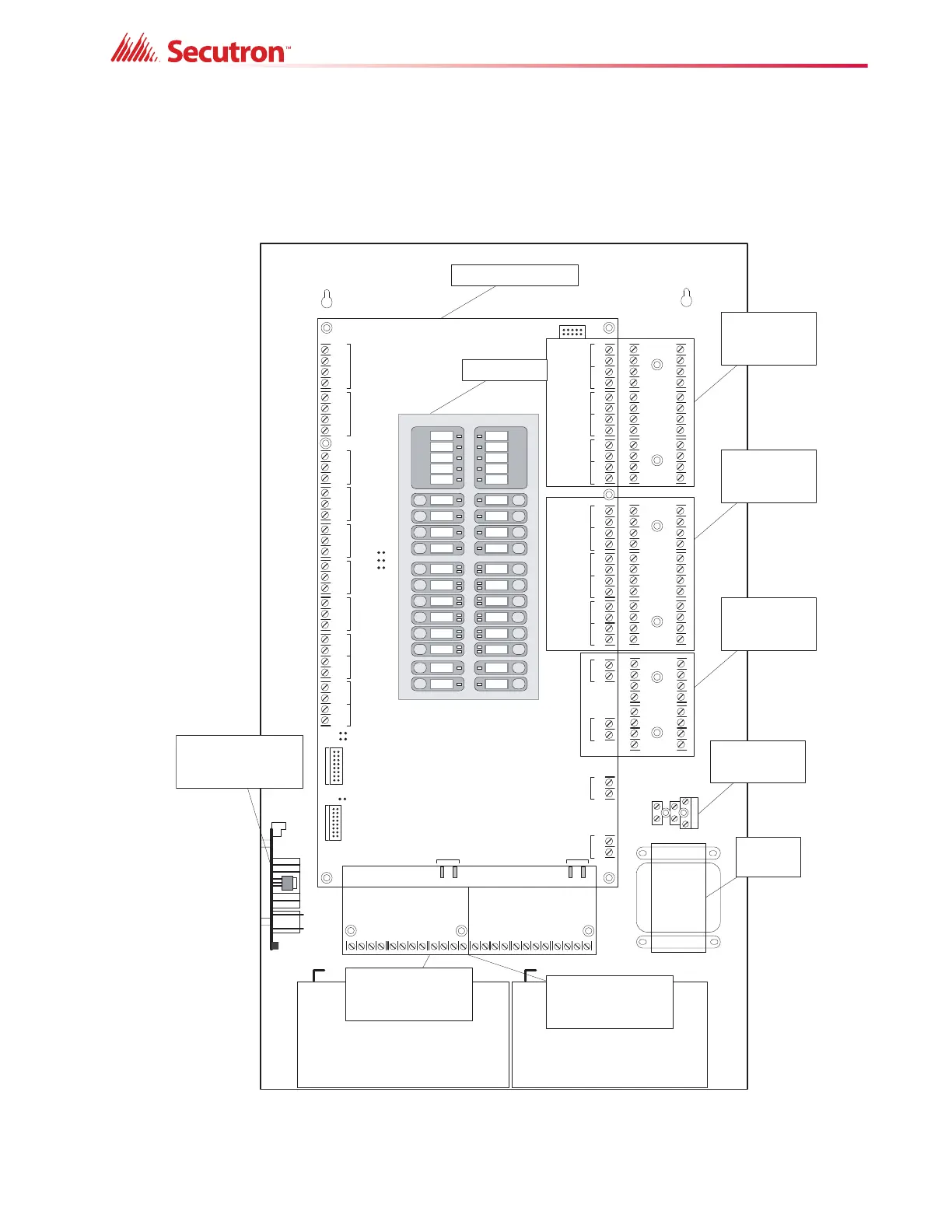
5.3 Installing the Adder Modules
MR-2300 LED Series Fire Alarm panels come pre-assembled with all components and boards
except for Adder Modules. Module installation locations are shown in Figure 6. Refer to Figure
7 on the next page for jumper and DIP switch settings and see section on page 37 for wiring
specifications.
Figure 6 Installation of Adder Modules
S-+NC N OCNC NOCNC NOCNC NOC
+-+-COM(+)
COM(-)
TRLTRB RTRT RTR T
RES CO RES C O
LINE1LINE2
JW3
JW2
JW1
-+-+-+-+-+-+-+-+-+-+-+-+-+-+-+-+
DET 1DET 2DET 3DET 4DE T 5DE T 6DE T 7DE T 8DET 9DET 1 0DET 11DET 12SI G 1SIG 2SIG 3SIG 4
JW 6
JW 5
JW 4
TO PR -300 MOD ULE
T O R M-312/R M-306 RELAY
MODULE
RS-
485
AUX. REL AYALA RM
REL AY
SU P E RV ISO RY
RELAY
TR OU BLE
RELAY
AU X
SUPPLY
4- W I R E
SUPPLY
UNFILTERED
RTI
PORT
P
1
P
2
P
3
P
4
+
_
BATTERY SEC. TX
BATTERY BATTERY
CLASS-A converter
board for detection
circuits MR-2300- A
(6 circuits)
CLASS-A converter
board for detection
circuits MR-2300-A
(6 circuits)
CLASS-A converter
board for indicating
circuits MR-2300-NC4
(4 circuits)
Reverse polarity and city
tie module MR-2300-PR.
Mounted on hex spacer
with two screws provided
Relay Module MR-2306-R6
Mount relay module on the
left side using two screws
provided .
Relay Module MR-2312-R12
centre under main fire
alarm board using three
screws provided .
Transformer
Fuse and AC wiring
terminal
MAIN FIRE PANEL BOARD
LED DISPLAY
WA LK
TEST
REMOTE
TROUBLE
CPU FAIL
GROUND
FA U LT
SI G N A L
SI LEN CE
FIR E
DRILL
GENERAL
ALARM
SY ST EM
RESET
AUX
DISC ONNECT
LA MP
TEST
A.C.
ON
COMMON
ALARM
COMMON
SU PV
COMMON
TROUBLE
BATTERY
TROUBLE
ZO N E -1
DISC ONNECT
ZO N E -3
DISC ONNECT
ZO N E -5
DISC ONNECT
ZO N E -7
DISC ONNECT
ZO N E -9
DISC ONNECT
ZO N E -11
DISC ONNECT
ZO N E -2
DISC ONNECT
ZO N E -4
DISC ONNECT
ZO N E -6
DISC ONNECT
ZO N E -8
DISC ONNECT
ZO N E -10
DISC ONNECT
ZO N E -12
DISC ONNECT
NAC-1
DISC ONNECT
NAC-3
DISC ONNECT
NAC-2
DISC ONNECT
NAC-4
DISC ONNECT
ALM/SUP/TBL/BLDG
AUDIBLE SIL
AUTOMATIC
ALARM SIGNAL
CANCEL

Table of Contents

Related product manuals