EasyManua.ls Logo

Sinoboom TB20J Plus - Page 137

Default Icon
193 pages
Print Icon
To Next Page IconTo Next Page
To Next Page IconTo Next Page
To Previous Page IconTo Previous Page
To Previous Page IconTo Previous Page
Loading...
ELECTRICAL SYSTEM
TB20J Plus Maintenance Manual 125
© Feb. 2023
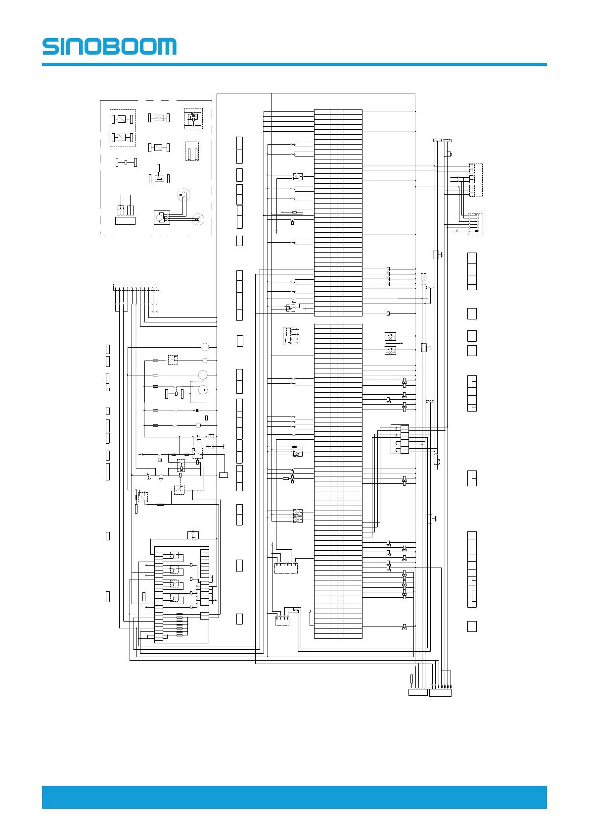
Fig 2 Electrical schematic of turntable (Yuchai YCF3050/China IV)
θ
CANH4
CANL4
GND
F6
F2
F1
F4
S1
F2
F3
F6
F1
S206
S207
S202
Platform Leveling
Up
Down
Main Boom Lift
Main Boom
Horn
Retract
Extend
Alternator
High Drive
Speed
Turntable Swing
Right
Left
Steer
Left
Right
Up Down
Brake Valve
Warning Lamp
Buzzer
Telescope
Main Boom
Telescope
Turntable Level
Turntable Swing
Rear Inspect
Platform/Ground
Select Switch
Oil Filter
Horn
Auxiliary
Platform Leveling
Platform Rotate
Hydraulic Filter
Main Boom Lift
Jib
Turntable Swing
Oil Cooler
Floating 1
Display
S205
Starter
37
36
35
34
33
32
21
20
19
18
17
16
15
14
13
12
11
10
9
8
5
4
3
1
2
47
48
49
50
51
52
53
54
46
43
42
41
40
39
38
45
44
55
PWM_OUT_16
PWM_OUT_36
OUT_20
PWM_OUT_34
PWM_OUT_33
F_IN_75
F_IN_73
F_IN_74
OUT_22
OUT_21
F_IN_71
F_IN_72
IN_42
IN_43
T_IN_63
T_IN_64
T_IN_65
V_IN_40
V_IN_41
T_IN_62
GND
PWM_OUT_17
PWM_OUT_15
PWM_OUT_35
OUT_19
PWM_OUT_18
PWM_OUT_13
PWM_OUT_14 F_IN_70
F_IN_69
V/IN_18
V/IN_17
V/IN_15
V/IN_16
V(C)_IN_52
V_IN_38
IN_44
V_IN_39
V/IN_22
V/IN_20
GND
GND V/IN_04
V/IN_06PWM_OUT_09
PWM_OUT_11
PWM_OUT_05
PWM_OUT_07
PWM_OUT_01
PWM_OUT_03
IN_45
92
91
90
89
88
87
86
85
84
83
82
81
80
79
78
77
76
75
74
73
72
71
70
69
68
67
66
65
64
63
62
61
60
59
58
56
57
96
94
93
IN_46
V/IN_10
V/IN_08
V/IN_07
CAN L4
V_IN_33
V(C)_IN_61
V_IN_34
CAN H4
V(C)_IN_58
V(C)_IN_53
V(C)_IN_59
V(C)_IN_60
V(C)_IN_56
IN_47
PWM_OUT_10
PWM_OUT_12
PWM_OUT_08
PWM_OUT_02
PWM_OUT_04
PWM_OUT_41
PWM_OUT_42
PWM_OUT_43
PWM_OUT_44
PWM_OUT_37
PWM_OUT_38
PWM_OUT_39
PWM_OUT_40
PWM_OUT_46
PWM/OUT_45
OUT_24
OUT_23
IN_48
IN_49OUT_26
OUT_25
CAN L3
CAN H3
PWM_OUT_06
IN_50
F_IN_68
GND
GND
V/IN_23
31
30
29
28
27
26
25
24
23
22
7
6
37
36
35
34
32
31
30
29
28
27
26
25
24
23
22
19
18
17
14
13
12
11
10
9
8
6
5
4
3
1
47
48
49
50
51
52
40
39
38
45
GND
GND
供电电源
+
供电电源
+
V/IN_03
V/IN_14
V/IN_19
V/IN_28
V/IN_09CAN H1
CAN L1 V_IN_36
V(C)_IN_54
VSS_1
A_OUT_47
GND
V/IN_5
V/IN_21
V/IN_27
V_IN_37
V(C)_IN_57
INH
V(C)_IN_55
WAKE
V_IN_35
VSS_2GND
V/IN_26
V/IN_24
V/IN_02
V/IN_30
V/IN_12
V/IN_31
KL15OUT_28
OUT_31
V/IN_25
V/IN_29
IN_51
V/IN_01
V/IN_32
V/IN_11
CAN H2
CAN L2
VSS_3
58
OUT_30
OUT_32
供电电源
+
供电电源
+
供电电源
+
F_IN_67
F_IN_66
V/IN_13
OUT_29
OUT_27
GND
供电电源
+
供电电源
+
33
21
20
16
15
7
2
53
54
46
43
42
41
44
55
56
57
DT10
DT11
DT1a
DT1b
DT17
DT8a
DT8b
DT14a
DT14b
DT14a
DT14b
Y12
DT7
DT5
Y11
B200
K14
85
86
DT3
K9
K8
85
86
A1
A2
B201
K11
85
86
Protection
DT13a
DT13b
GND
GND
GND
GND
GND
GND
GND
F1
F2
F2
F2
F2
S201
S200
S209
SA200-II
Engine Start
4
3
1
L201
SQ214
S211
SB201
Switch
Unit
L200
Low Fuel
Level Indicator
ST200
SQ213
SQ212
Inspect
F2
GND GND
GND
CANH2
CANL2
CANH1
CANL1
F3
GND
Oil temp
250
251
252
253
256
257
258
259
260
261
262
263
264
265
266
267
268
269
272
273
274
275
276
277
278
279
280
281
271
254
255
287
288
291
292
283
284
290
289
201
202
203
204
205
206
207
211
212
213
214
GND
GND
219
220
221
222
223
224
225
226
227
228
229
230
231
232
233
234
235
236
238
237
239
2/19
K19
85
86
Engine
Alarm Stop
CANH3
CANL3
F4
2
345
V+
V-
CANH
CANL
L202/203
Angle Sensor
GNDS
282
285
286
120Ω
CANH1
CANL1
C
C
A
C24
25
34
24
2
1
Length Sensor
4
3
1
SQ202
4
3
1
SQ203
DT9
DT12
241
242
208
5
6
S1
S2
1
234
+V
-V
A1
A2
CANH4
CANL4
Drive Direction Control
Forward Back
215
216
217
218
F1
17
33
GND
GND
B+
BAT2
BAT1
SA201
37
B05
S1
B03
FU2 50A
19
FU6 25A
B02
M
_
E
N
B+
D+
M
31
30
50
FU1 10A
FU3 200A
K9
M3
K25
S101
M
M1
K15
20
15
06
GND
GND
FU5 150A
14
B01
GND
11
K8
G1
B04
SA200-I
B04
18
06
F5
F5
12
G
M2
85
86
87a
30
87
87a
30
87
Platform Electrical
Power/Emergency Stop
F3
FU4 350A
K11
87a
30
87
K10
K21
85
86
85
86
87a
30
87
85
86
K10
K21
85
86
K11
F4 10A
F3 10A
F7 15A
F5 10A
87a
30
87
87a
30
87
F4
F1 15A
K14
K14
F3
F1
F1
F7
F5
F2
F6 2A
F2 15A
PCB
(1)
F1
22
F6
XJ2-3
XJ1-3/4
XJ1-1/2
B06
XJ1-22
XJ1-23/24
XJ1-25/26
XJ1-27/28
XJ1-29/30
XJ1-31/32
GND
XJ2-4
XJ2-12
XJ2-2
XJ2-1
XJ2-10
XJ2-7
XJ2-8
XJ2-5
XJ2-6
XJ2-9
XJ2-11
XJ2-14
XJ2-13
XJ2-16
XJ2-15
XJ1-5/6
XJ1-7/8
XJ1-9/10
XJ1-11/12
XJ1-19/20
XJ1-15/16
XJ1-17/18
XJ1-13/14
XJ3-1/11
XJ3-2/12
XJ3-3/13
XJ3-4/14
XJ3-5/15
XJ3-6/16
XJ3-7/17
XJ3-8/18
喇叭
B05
203
204
XC2:43
XC2:44
B04
05
HA
CANL1
CANH1
CANL4
CANH4
XJ3-1/11
XJ3-2/12
XJ3-3/13
XJ3-4/14
XJ3-5/15
XJ3-6/16
XJ3-7/17
XJ3-8/18
PCB
(2)
120Ω
CANL3
CANH3
120Ω120Ω120Ω
CANL2
CANH2
CANH1
CANL1
CANH4
CANL4
B
C
A
C26
CANH1
CANL1
Platform Electrical
GND
XJ1-21
L204/205
CANH3
CANL3
B
C
A
C25
XJ
XJ
XC1 XC2
S212
297
Turntable Enable
GND
Rope Broken
Inspect II Inspect I
SQ200
270
4
3
1
FU8 50A
17
16
ECU K88
Engine
ECU
K15
GND
1
2
N1
U1
GND
U2
N2
N
U
1
2
G2
ECU A39
ECU A54
Vehicle Speed Sensor
ECU K17
Water In Fuel
ECU K72
-
ECU K68
Heater Relay Control
Coolant Temperature
ECU A24
Oil Press Switch
HYDRAULIC_ALTEMATOR
250Ω/5W
Power/Emergency Stop
Key Switch
Main Switch
Auxiliary Unit
Glow plug
Alternator
Starter
Oil Cooler
Horn
F1
F6
F2
F3
F4
CANH2
CANL2
Engine
CANH1
CANL1
F3
120Ω
DT19
Floating 2
Main Boom
Telescope Inspect
SQ201
Floating
Pressure Switch
Main Valve
System Pressure
4
3
1
GNDS
2/63
2/61
P205
GNDS
F2
F3
F6
F1
F2
F3
F6
F1
F2
F3
F6
F1
GND
CANH2
CANL2
CANH3
CANL3
CANH4
CANL4
120
Ω
37
GNDS
CANH1
CANL1
P206
S210
Engine High Speed
GPS Model
8
4
3
7 1 2
CANH1 CANL1 CANL2 CANH2
V- Acc
5
V+
GPS
F1
F4
CANH1
CANL1
GND
Option
Reserve
Option
Option
CAN1-SH
CAN2-SH
CAN3-SH
Only TB18 Plus
Except TB18 Plus
Only GTBZ20m Series
Only GTBZ20m Series
Option Option
K2
ECU A57
ECU K54
ECU K76
CANH2
CANL2
ECU-CAN
TOOL PORT T1
CANH2
16
4
6
14
CANL2
F1
GND
Engine Start
K01
K01
K01
Engine
ECU
B01
GND
GND
GND
GND
Power
ECU K76
ECU K54
86
85
K5
09
KT0
87
30
85
86
30S
M
_
M4
Fuel Pump
07
B06
02
FU9 10A
FU10 5A
07
K19
87a
30
87
ECU A28
ECU A29
30
85
87
86
Time_Delay Relay
2/64
Coolant
Level Sensor
ECU K71
ECU K35
+5V
+5V
ECU K29
K01
K03
K05
K02
K04
K06
CANH2
CANL2
B
C
A
C28
ECU K87
Auxiliary Unit
GND
Option
30
87
87a
FU7 25A
7
ECU K59
K01
03
K01
-
ECU A44
ECU A37
ECU A53
-
S
U
-
S
v
U
-
S
v
U
Rope Broken
W
Reserve
CANL4
CANH4
7 4 3 2
F1
GND
Reserve
C27
9 8
F4
72
72
B04A
B04A
GPS
72
F4
B04
Horn
Start Protection
CANH3
CANL3
1
2
CANH
CANL
L201
B
C
A
CANL3
CANH3
F3
GND
+
-S
Option
Di-axial Level Sensor OR Switch
Di-axial Level
Sensor
P
P
G
P
Lift
Proportion
Slew
Proportion
Telescopic
Proportion
Public
Proportion
+
--
+

Table of Contents