EasyManua.ls Logo

Sinoboom TB20J Plus - Electrical Schematic Diagram of; Platform

Default Icon
193 pages
Print Icon
To Next Page IconTo Next Page
To Next Page IconTo Next Page
To Previous Page IconTo Previous Page
To Previous Page IconTo Previous Page
Loading...
ELECTRICAL SYSTEM
TB20J Plus Maintenance Manual 129
© Feb. 2023
Electrical Schematic Diagram of
Platform
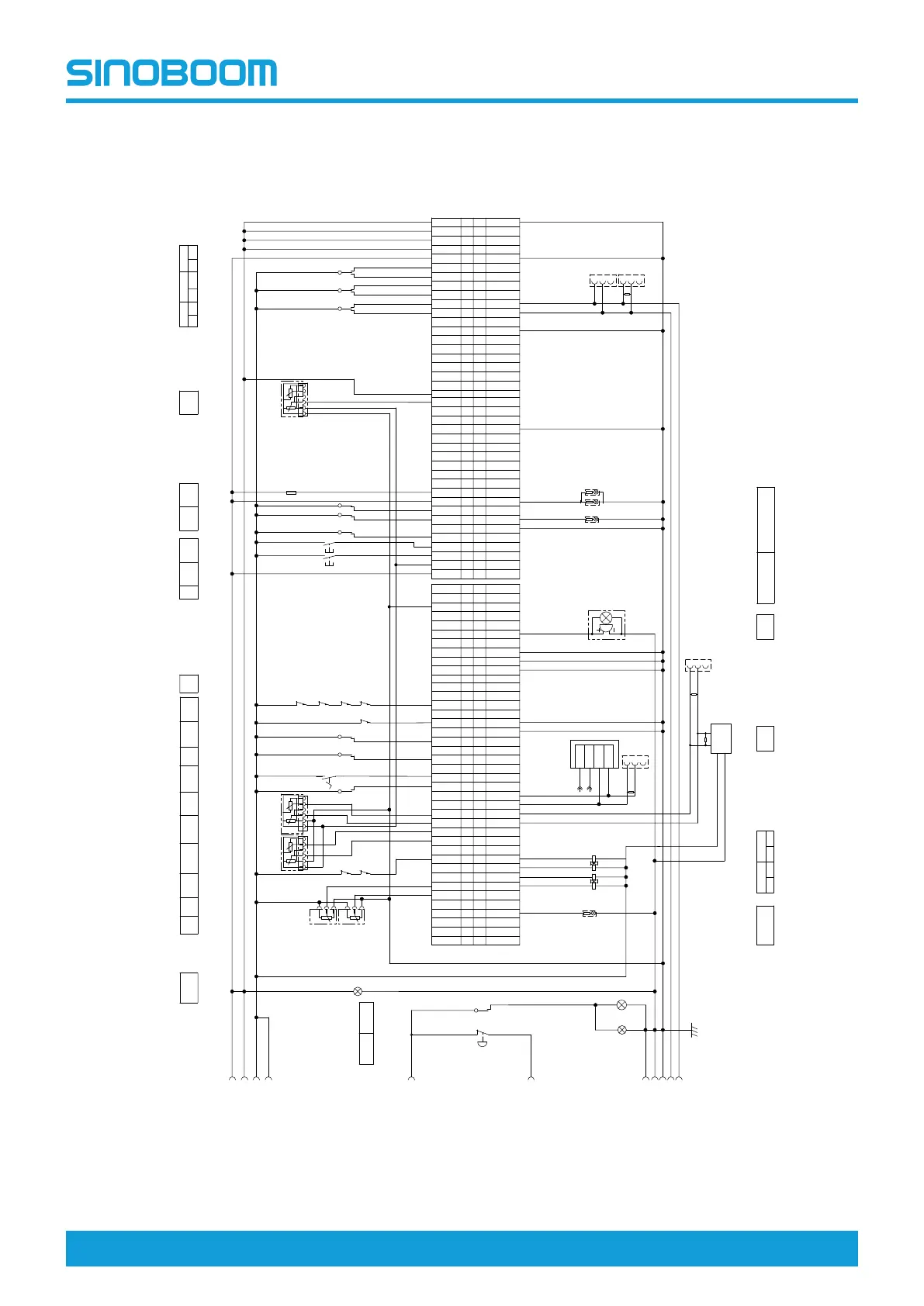
Fig 6 Electrical schematic of platform (WEICHAI WP3.2, Yuchai YCF3050/China IV)
37
36
35
34
32
31
30
29
28
27
26
25
24
23
22
19
18
17
14
12
11
10
9
6
5
4
3
1
47
48
49
50
51
52
40
39
38
45
GND
GND
供电电源
+
供电电源
+
V/IN_03
V/IN_14
V/IN_19
V/IN_28
V/IN_09
CAN H1
CAN L1
V_IN_36
V(C)_IN_54
VSS_1
A_OUT_47
GND
V/IN_5
V/IN_21
V/IN_27
V_IN_37
V(C)_IN_57
INH
V(C)_IN_55
WAKE
V_IN_35
VSS_2
GND
V/IN_26
V/IN_24
V/IN_02
V/IN_30
V/IN_12
V/IN_31
KL15
OUT_28
V/IN_25
V/IN_29
IN_51
V/IN_01
V/IN_32
V/IN_11
CAN H2
CAN L2
VSS_3
58
供电电源
+
供电电源
+
供电电源
+
V/IN_13
OUT_27
GND
供电电源
+
供电电源
+
33
21
20
16
15
7
2
53
54
46
43
42
41
44
55
56
57
37
36
35
34
33
32
20
19
17
16
15
14
9
8
5
4
3
1
2
47
48
51
53
54
46
43
42
41
40
39
38
45
44
55
PWM_OUT_36
OUT_20
PWM_OUT_34
PWM_OUT_33
F_IN_75
OUT_22
OUT_21
IN_42
IN_43
T_IN_63
T_IN_64
V_IN_40
V_IN_41
GND
PWM_OUT_35
OUT_19
F_IN_70
F_IN_69
V/IN_18
V/IN_17
V/IN_15
V/IN_16
V(C)_IN_52
V_IN_38
IN_44
V_IN_39
V/IN_22
V/IN_20
GND
GND
V/IN_04
V/IN_06
PWM_OUT_05
PWM_OUT_01
PWM_OUT_03
IN_45
90
89
86
85
84
83
80
79
78
77
75
72
71
70
69
68
67
66
65
64
63
62
61
60
59
58
56
57
94
93
IN_46
V/IN_10
V/IN_08
V/IN_07
CAN L4
V_IN_33
V(C)_IN_61
V_IN_34
CAN H4
V(C)_IN_58
V(C)_IN_53
V(C)_IN_59
V(C)_IN_60
V(C)_IN_56
IN_47
PWM_OUT_02
PWM_OUT_04
PWM_OUT_41
PWM_OUT_42
PWM_OUT_37
PWM_OUT_38
PWM_OUT_39
PWM_OUT_40
OUT_24
OUT_23
IN_48
IN_49
OUT_26
OUT_25
CAN L3
CAN H3
PWM_OUT_06
IN_50
F_IN_68
GND
GND
V/IN_23
28
27
24
23
22
7
6
GND
06
B04
SB100
S116
H100
GND
HG100
180
F5
F3
GND
Emergency Stop
RC28-14
Swing
Steer
Drive
Weight2
Weight 1
Right
Left
Down
Up
Jib
Down
Up
Platform Leveling
Platform Rotate
B100
R
H103
Rear Area Indicator
Buzzer
GND
Horn
Drive Speed
Rear Drive
Power Indicator
Obstacles
+5V
SQ105
S113
SB102
S107
Remove Switch
Inspect
Foot Switch
S102
S101
S100
F5
SF100
CANL1
CANH1
A
B
C15
120
GND
GND
GND
GND
GND
GND
GND
GND
GND
GND
GND
131
132
133
134
135
136
130
103
104
105
106
107
F5
F5
F5A
F5
6
L102
1
4
X
Y
5 3
L101
5
1
2 4
翘板开关
Y
6
2
3
1
L105
2
3
1
L106
143
144
149
152
153
154
158
164
165
166
167
168
169
172
FU 2A
173
92
91
96
SQ107
174-1
Lift
Man Protect
Detection
X
2 3
XC1 XC2
182
183
SB101
GND
GND
C
CANH1
CANL1
GND
F5
F5
F5
F5
F5
184
185
Working Lamp
A
B
C16
C
113
114
115
116
DT16b
DT16a
DT15b
DT15a
Jib
Up
Down
Platform Rotate
Left
Right
F3
6
L103
1
4
X
Y
52 3
+5V
GND
+5V
142
Main Boom
Telescope
121
122
S111
162
S109
151
Engine Start
175
Engine Speed
S108
150
GND
+5V
109
186
163
Auxiliary
CANL4
CANH4
GND
F5
CANL
CANH
GND
+12V
4
3
2
1
S11
CANH4
CANL4
A
B
C17
C
CANL4
CANH4
GND
120
F3
Option
Option
GND
12
8
4
1
BY101
A
B
C19
C
CANL3
CANH3
120
120
F3
GND
CANH3
CANL3
S117
160
HV Function
Speaker
Voice
R
H113
125
OUT_31
HV Function Indicator
174-2
Man Protect
Detection
SQ115
R
HR114
R
CrushProtect Warning Light

Table of Contents

Other manuals for Sinoboom TB20J Plus

Related product manuals