EasyManua.ls Logo

Sinoboom TB20J Plus - Electrical Schematic of Hydraulic; Generator

Default Icon
193 pages
Print Icon
To Next Page IconTo Next Page
To Next Page IconTo Next Page
To Previous Page IconTo Previous Page
To Previous Page IconTo Previous Page
Loading...
ELECTRICAL SYSTEM
TB20J Plus Maintenance Manual 133
© Feb. 2023
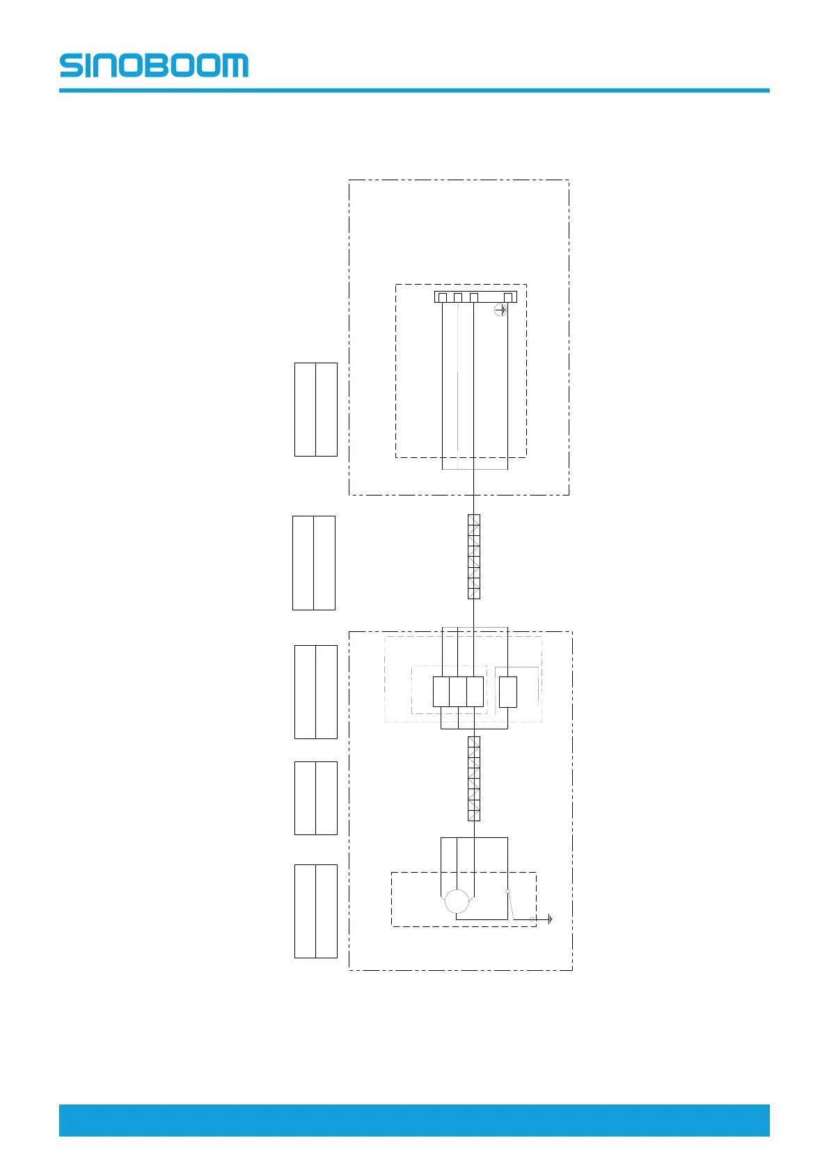
Electrical Schematic of
Hydraulic Generator
Fig 10 Electrical schematic of hydraulic generator (North America)
Hydraulic Generator
Leakage Protector
208V Socket(AC)
Drag Chain of Cable(4×10)
Leakage Protector Assembly
Drag Chain of Cable(4×10)
Socket
3-Phase
Platform Side
Turntable Side
CF34.UL 100.04.D 4×10
CF34.UL 100.04.D 4×10
Wire Connecting Terminal
Leakage Protector Assembly
63A
Hydraulic Generator
Do wire harness only do not
connect the real object
Do wire harness only do not
connect the real object
L1
L2
L3
L2
L1
L3
PE&N
L2
N
L1
L2
L3
L1
L3
L2
PE&N
L1
L3
L2
L1
L3
PE&N
Shell GND
PE&N
PE&N

Table of Contents

Other manuals for Sinoboom TB20J Plus

Related product manuals