EasyManua.ls Logo

Sinoboom TB20J Plus - Page 144

Default Icon
193 pages
Print Icon
To Next Page IconTo Next Page
To Next Page IconTo Next Page
To Previous Page IconTo Previous Page
To Previous Page IconTo Previous Page
Loading...
© Feb. 2023 132 TB20J Plus Maintenance Manual
ELECTRICAL SYSTEM
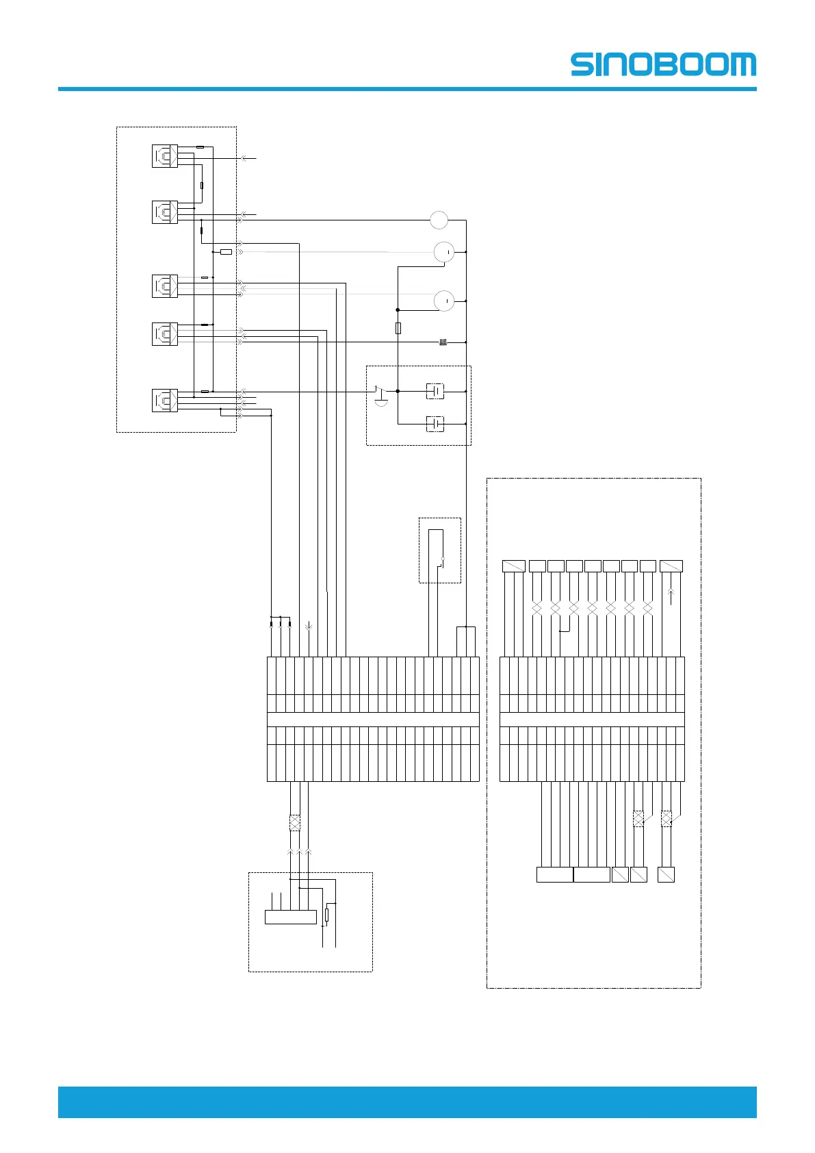
Fig 9 Electrical schematic of engine (Yuchai YCF3050/China IV)
Start Relay
Glow Plug Relay
K2
K15
K29
17
16
205
GND
02
07
Alarm&Shutdown Relay
BAT2
BAT1
12V
M
30
50
31
E
N
B+
D+
G
Starter Alternator
B+
(70.0)
(16.0)
(1.0)
(10.0)
(70.0)
(Fuse Box)
(70.0)
S1
FU4 350A
17
B02
M
_
M4
M1
15
G1
Glow plug
K5
ECU Power Supply Relay
K72
K68
15
14
09
GND
03
FU5 150A
GND
B01
(6.0)
FU8 50A
250Ω/5W
07
Fuel Pump
K19
ECU-K
F1
GND
CANH2
CANL2
16
4
6
14
Tool Port T1
CANH2
CANL2
Turntable Control Box Assembly
K01
K01
(2.5)
(2.5)
(2.5)
(4.0)
(2.5)
(1.0)
18
CANH2
CANL2
(0.5)
(0.5)
37
GND
B06
B05
K25
FU9 10A
Control Power Switch
(2.5)
(2.5)
(2.5)
02
06
76
04
54
59
01
05
03
88
68
72
29
35
71
87
17
K01
GND
GND
GND
K68
K72
K71
K88
05
K71
K29
Water In Fuel
K17
K01
FU2 50A
*05
*09
*205
*37
K76
K54
K59
K02
K06
K04
K01
K05
K03
K88
K68
K72
K29
K35
K71
K87
K17
FU7 25A
J26
120Ω
Power Box
(4.0)
GND
7
K87
(1.5)
(1.5)
ECU-A
44
A44
28
A28
29
A29
54
A54
39
A39
38
A38
52
A52
37
A37
53
A53
22
A22
58
A58
24
A24
29
A29
10
A10
04
A04
05
A05
34
A34
60
A60
15
A15
33
A33
16
A16
47
A47
17
A17
31
A31
01
A01
32
A32
02
A02
A44
A28
A29
A54
A39
A38
A52
A37
A53
A22
A57
A58
1
2
3
4
42
A42
27
A27
09
A09
43
A43
57
A57
59
A59
24
A24
A42
A27
A09
A43
A57
A59
A24
1
2
3
4
-
S
U
S
-
U
S
-
U
U
P
1
2
3
L
U
1
2
3
A24
A29
A10
A04
A05
A34
A60
A15
A33
A16
A47
A17
A31
A01
A32
A02
-
S
S
-
-
S
-
S
-
S
-
S
S
-
(1.5)
(1.5)
(1.5)
(1.5)
(1.5)
(1.5)
(1.5)
(1.5)
Boost Pres Temp Sensor
Oil Pres And Pres Temp Sensor
Water Temp Sensor
Crankshaft Sensor
Magnetoelectric
Concave teeth
Camshaft Sensor
Magnetoelectric
Convex teeth
Exhaust Pres Sensor
Oil Level Sensor
Fuel Metering Valve
In Cylinder Brake Valve 1
In Cylinder Brake Valve 2
First Cylinder
Fourth Cylinder
Third Cylinder
Second Cylinder
K59
W
FU10 5A
K01
K01
B01
K68
K72
15
K29
K71
17
B02
K88
07
K59
+
--
+

Table of Contents