EasyManua.ls Logo

Sinoboom TB20J Plus - Boom Slider

Default Icon
193 pages
Print Icon
To Next Page IconTo Next Page
To Next Page IconTo Next Page
To Previous Page IconTo Previous Page
To Previous Page IconTo Previous Page
Loading...
BOOM AND PLATFORM ASSEMBLY
TB20J Plus Maintenance Manual
55
© Feb. 2023
capacity not less than 5t/11023lb) to support the
main boom tail (near the platform).
6. Use suitable lifting equipment to provide reliable
support for the main boom lift cylinder.
7. Remove the retaining ring at the pivot pin #1 con-
necting the lift cylinder with the boom tube, and
knock out the pivot pin #1 with a brass rod and
mallet.
8. Use suitable lifting equipment (with the lifting ca-
pacity not less than 5t/11023lb) to support the main
boom head (near the turntable).
9. Remove the bolt and stop pin at the pivot pins #2
and #3 connecting the main boom assembly with
the support boom.
10. Knock out the pivot pins #2 and #3 with a brass rod
and mallet.
11. With the assistance of the lifting equipment, slowly
remove the main boom assembly from the turntable
and carefully place it on a suitable support.
Installation
Follow the reverse order of the disassembly procedures.
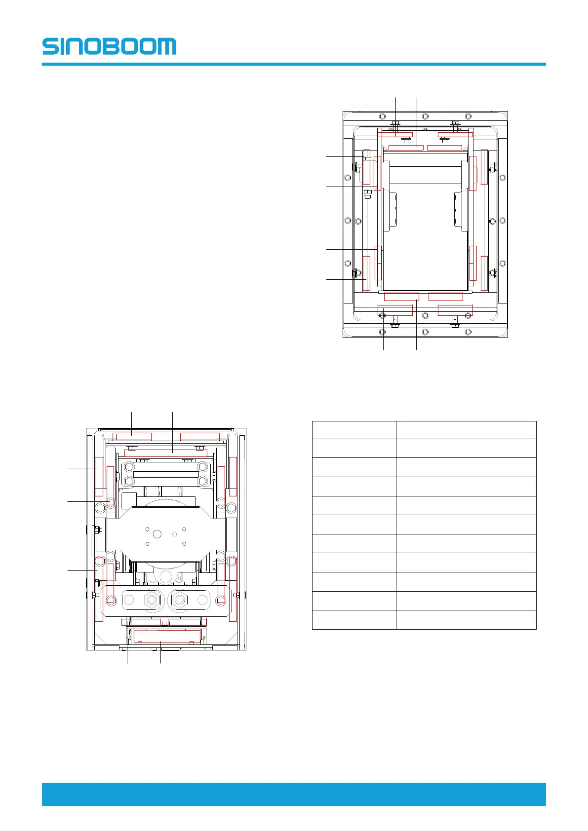
Boom Slider
Fig 6 Diagram of sliders at boom head
Fig 7 Diagram of sliders at boom tail
Table 6-2 Boom slider thickness
No. Slider thickness
1
18mm (0.71in)
2
18mm (0.71in)
3 20mm (0.79in)
4
16mm (0.63in)
5
22mm (0.87in)
6 20mm (0.79in)
7
25mm (0.98in)
8
16mm (0.63in)
9 28mm (1.10in)
10
23mm (0.91in)
The boom slider is essential for the safe operation of the
machine. As a friction pair will develop between each
slider and the telescopic boom surface, improper slider
gaskets or continued use of extremely worn sliders may
result in component damage and unsafe operation. It is
recommended to check the boom slider thickness once
a year or after 1000 hours of operation.
1. Remove the cover plate from the head of the main
boom (near the turntable) or the nylon brush at the
tail of the main boom (near the platform).
1
6
4
3
5
2
7
8 8
3
3
3
3
9
10

Table of Contents

Other manuals for Sinoboom TB20J Plus

Related product manuals