EasyManua.ls Logo

TCM FB30-8 - Hydraulic Oil Tank

TCM FB30-8
259 pages
Print Icon
To Next Page IconTo Next Page
To Next Page IconTo Next Page
To Previous Page IconTo Previous Page
To Previous Page IconTo Previous Page
Loading...
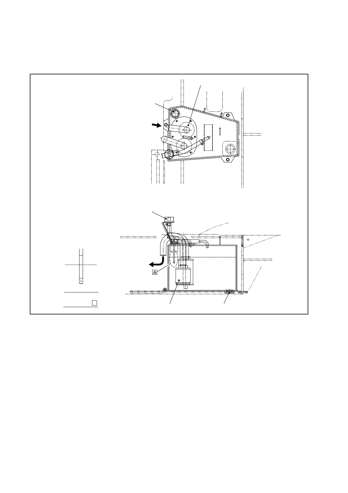
7.1.4 HYDRAULIC OIL TANK
The hydraulic oil tank is located at the center of the frame. In the tank, a suction lter and a
return lter are provided for the purpose of ensuring clean oil supply.
部詳細
ブリーザ
ドレンプラグ
サクションフィルタ
メインポンプへ
ントロールバルブから
給油キャップ
リターンフィルタ
Fig. 7.5 Hydraulic Oil Tank
FB10-18 : 18 L [4.8 US gal]
FB20-35 : 25 L [6.6 US gal]
OIL FILL CAP
from CONTROL VALVE
BREATHER
to MAIN PUMP
RETURN FILTER
SUCTION FILTER
DRAIN PLUG
Detail of part
A
(1)Replacinglters
Remove the drain plug and drain the oil tank.
Clean the tank cover surrounding area. Then remove the cover securing bolts.
Remove the suction and return hoses.
Remove the tank cover.
Remove the return lter, then install a new return lter.
Remove the suction lter, then install a new suction lter.
Remove the packings from the cover and the tank, then apply sealing agent to the tank.
Sealing agent: THREEBOND#4001 or equivalent
Reinstall the tank cover, then connect the suction and return hoses.

Table of Contents

Related product manuals