EasyManua.ls Logo

TCM FB30-8 - Page 55

TCM FB30-8
259 pages
Print Icon
To Next Page IconTo Next Page
To Next Page IconTo Next Page
To Previous Page IconTo Previous Page
To Previous Page IconTo Previous Page
Loading...
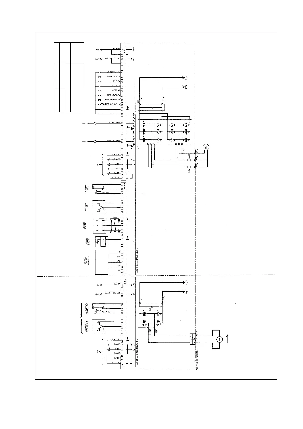
Fig. 3.6 Inverter Unit (pump motor) Circuit (2.0- to 3.5-ton Trucks with an EPS steering system
and 1-ton Class Trucks with an Orbitrol steering system)
The direction of current
at the time of the steering
wheel being turned
clockwise.
* Short-circuit “SIG” and “-“
terminals of the sensor not
in use.
Truck model selection switch status
Model
selection
option 1
Model
selection
option 2
1-ton class Opened Opened
2-ton class Connected Connected
3-ton class Connected Connected
* Connected: To be connected to the
signal wire GND.
(Not available on trucks with Orbitrol steering
system)

Table of Contents

Related product manuals