EasyManua.ls Logo

Thales V6000 - Installing the chassis into a rack; Installing the chassis into a mid-mount position (telco) rack

Thales V6000
181 pages
Print Icon
To Next Page IconTo Next Page
To Next Page IconTo Next Page
To Previous Page IconTo Previous Page
To Previous Page IconTo Previous Page
Loading...
Appendix A: Specifications, Racking, and Cabling for the V6000 and V6100
Rack Mounting Instructions
DSM Installation and Configuration Guide
Copyright 2009 - 2020 Thales Group. All rights reserved.
131
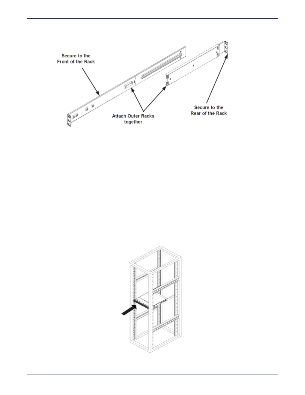
Figure A-7: Assembling the Outer Rails
Outer rack rails
Outer rails attach to the server rack and hold the server in place. The outer rails for the V6000/V6100 chassis extend
between 30 inches and 33 inches.
Installing the outer rails to the rack
1. Attach the short bracket to the outside of the long bracket. You must align the pins with the slides. Also, both
bracket ends must face the same direction.
2. Adjust both the short and long brackets to the proper distance so that the rail fits snugly into the rack.
3. Secure the long bracket to the front side of the outer rail with two M5 screws and the short bracket to the rear side
of the outer rail with three M5 screws.
4. Repeat steps 1-3 for the left outer rail.
Figure A-8: Installing into a rack

Table of Contents

Related product manuals