EasyManua.ls Logo

Toshiba TH650A - External Dimensions

Toshiba TH650A
72 pages
To Next Page IconTo Next Page
To Next Page IconTo Next Page
To Previous Page IconTo Previous Page
To Previous Page IconTo Previous Page
Loading...
TRANSPORTATION AND INSTALLATION MANUAL
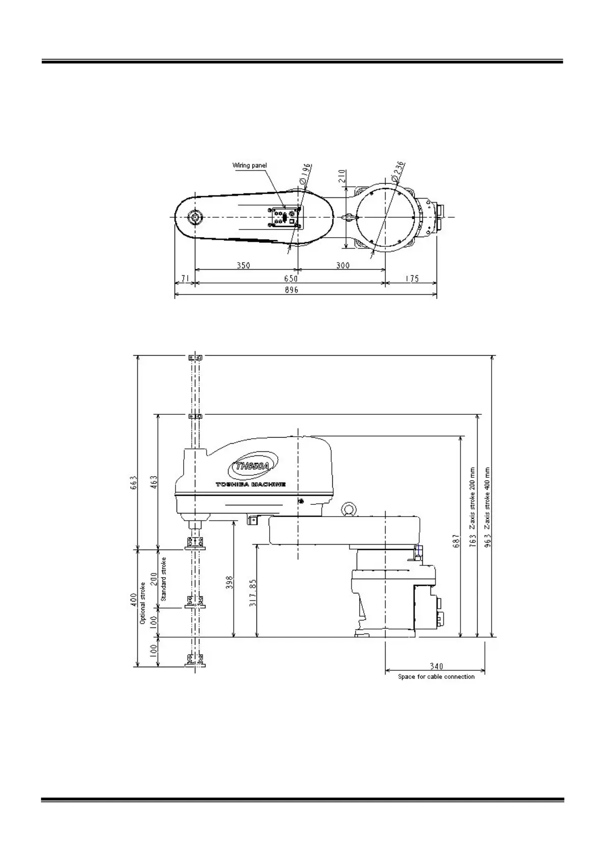
1.2 External Dimensions
Fig. 1.2 refers to the external dimensions of the robot.
Fig. 1.2 External dimensions of the robot
STE 85305
11

Table of Contents

Other manuals for Toshiba TH650A

Related product manuals