EasyManua.ls Logo

Trane CenTraVac CVHE - Page 73

Trane CenTraVac CVHE
108 pages
Print Icon
To Next Page IconTo Next Page
To Next Page IconTo Next Page
To Previous Page IconTo Previous Page
To Previous Page IconTo Previous Page
Loading...
CVHE-SVX005C-EN
73
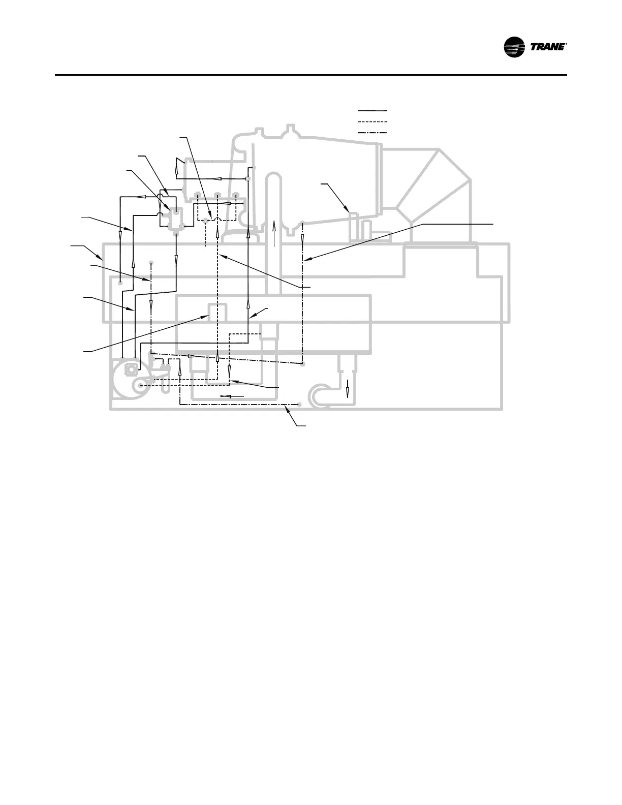
Figure 50. Oil refrigerant pump, 032 short/log evaporator sizes only
Compressor lubrication system
Motor cooling system
Oil reclaim system
1
2
3
4
5
6
7
8
-
w
i
=
e
r
y
q
9
u
t
0
1. Motor coolant return to condenser, 2.125 in. (53.975 mm) OD
2. Oil tank vent to evaporator
3. Oil separator and tank vent manifold
4. Tank vent line
5. Condenser
6. High pressure condenser gas to drive oil reclaim eductors, 0.375 in. (9.525 mm) OD
7. Oil return to tank
8. Oil tank
9. Oil reclaim from evaporator (second eductor), 0.25 in. (6.35 mm) OD
10. Liquid refrigerant to pump, 1.625 in. (41.275 mm) OD
11. Economizer
12. Oil supply to bearings, 0.625 in. (15.875 mm) OD
13. Purge
14. Compressor
15. Liquid refrigerant motor coolant supply, 1.125 in. (28.575 mm) OD
16. Liquid refrigerant to economizer
17. Liquid refrigerant to evaporator
18. Evaporator
19. Oil reclaim from suction cover (first eductor), 0.25 in. (6.35 mm) OD
20. Motor coolant filter
Operating Principles

Table of Contents

Related product manuals