EasyManua.ls Logo

VAMP 259 - Page 55

VAMP 259
304 pages
Print Icon
To Next Page IconTo Next Page
To Next Page IconTo Next Page
To Previous Page IconTo Previous Page
To Previous Page IconTo Previous Page
Loading...
Technical description
2 Protection functions
2.4 Distance protection Z<
VM259.EN007
55
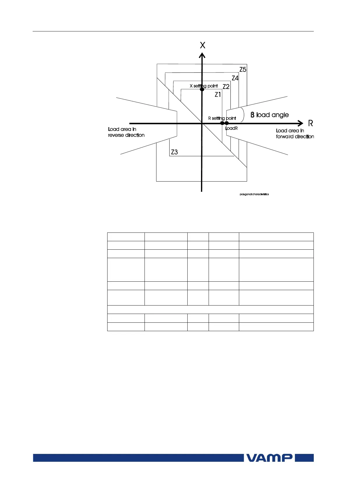
Figure 2.4.1-3 The distance protection polygonal characteristics. In this
example zone 3 is in reverse direction and zone 5 is non-directional.
Parameters of the distance protection stage (21) :
Parameter
Value
Unit
Default
Description
X
0.05 .. 250.00
ohm
0.80
X-setting
R
0.05 .. 250.00
ohm
0.80
R-setting
MODE
Reverse/Forw
ard/
Undirectional
Forward
Direction mode
t<
0.04 .. 300.00
S
Operation delay
LOAD
BLOCK
No/Yes
Yes
Load block in use
Common parameters for all zones
LoadAngle
10 .. 40
°
40
Load angle
LoadR
0.05 .. 250.00
ohm
1.00
Load resistance
X-, R- and Load resistance settings are secondary impedances.
Primary values of settings are displayed in VAMPSET
and display.
Voltage memory
A 0.5 second cyclic buffer storing the phase-to-earth voltages is
used as voltage memory. The stored phase angle information is
used as direction reference if all the phase voltages drop below
1% during a fault.

Table of Contents