EasyManua.ls Logo

VIDEOJET 3140 - Safety Circuit

Default Icon
104 pages
Print Icon
To Next Page IconTo Next Page
To Next Page IconTo Next Page
To Previous Page IconTo Previous Page
To Previous Page IconTo Previous Page
Loading...
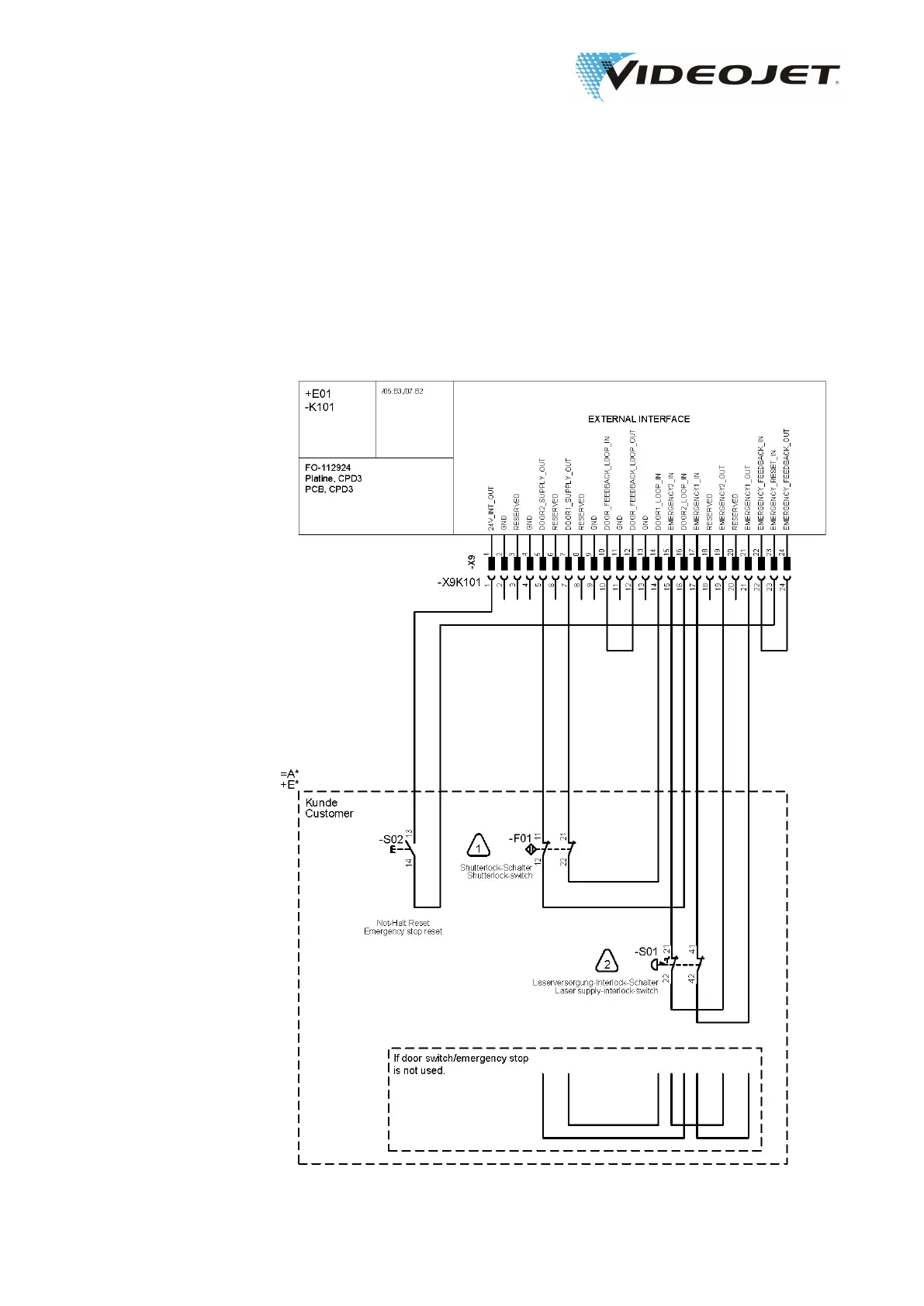
8.4.4 Safety Circuit
1. Door circuit performance level "d".
System response: Shutterlock open. Message: Door circuit open.
2. Emergency stop performance level "e".
System response: Interlock open. Message: Emergency stop open.
Emergency stop must be reset with S02 after the safe state has been re-
stored.
09/17 - Index: AD [EN]
84
Videojet 3140/3340/3640/8 Appendix

Table of Contents