EasyManua.ls Logo

Wacker Neuson G 150 - Page 42

Wacker Neuson G 150
74 pages
Print Icon
To Next Page IconTo Next Page
To Next Page IconTo Next Page
To Previous Page IconTo Previous Page
To Previous Page IconTo Previous Page
Loading...
Operation G 150 / 180 / 240
wc_tx000867gb.fm 42
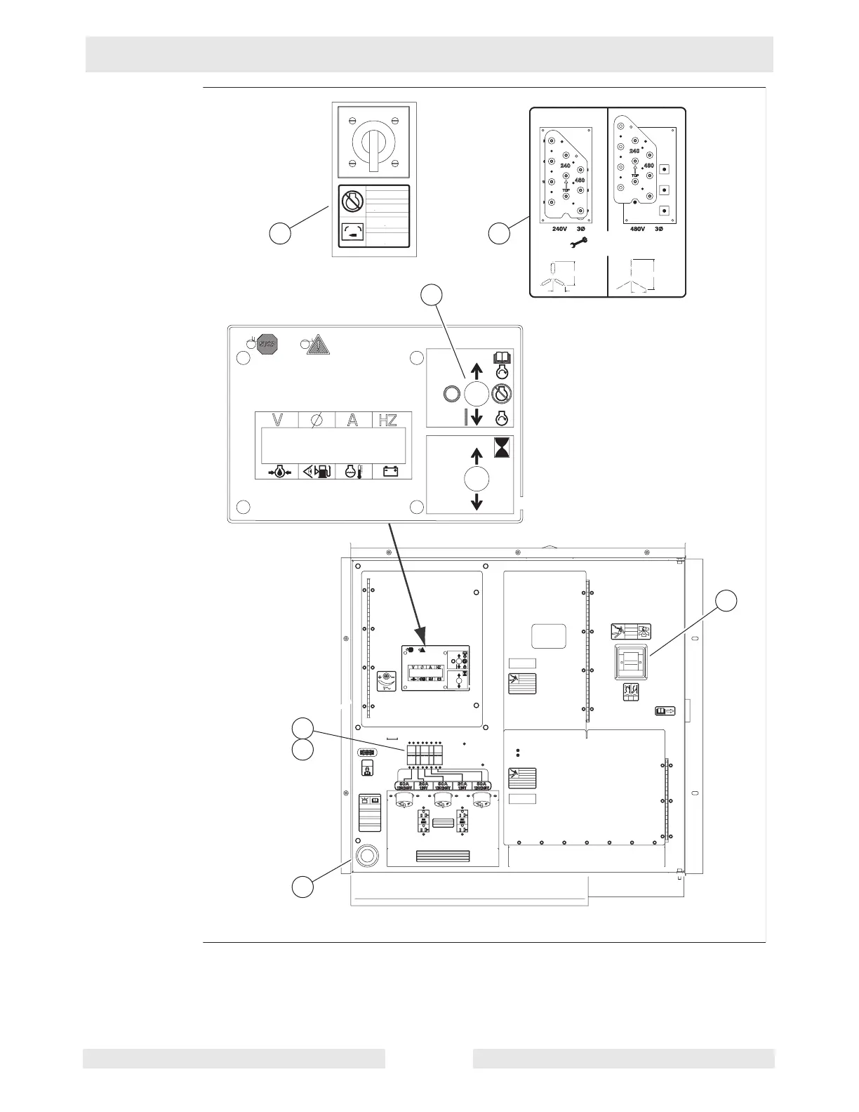
wc_gr005276
G 150 / G 180 G 240
NOTICE
NOTICE
ACHTUNG
ACHTUNG
AVISO
AVISO
208
208
120
120
Never change switch position
Never change switch position
with engine running.
with engine running.
Results in damage to machine.
Results in damage to machine.
ATTENTION
ATTENTION
Niemals Schalter umstellen
Niemals Schalter umstellen
wenn Motor lauft. Verursacht
wenn Motor lauft. Verursacht
Beschadigung des Gerates.
Beschadigung des Gerates.
Nunca cambie la posicion del
Nunca cambie la posicion del
interruptor al estar marchando
interruptor al estar marchando
el motor. Ya que esto podria
el motor. Ya que esto podria
conducir a danos en el equipo.
conducir a danos en el equipo.
240
240
120
120
480
480
277
277
176228
176228
Ne jamais changer la position
Ne jamais changer la position
de l'interrupteur pendant que
de l'interrupteur pendant que
le moteur est en marche. Il
le moteur est en marche. Il
pourrait en resulter risque
pourrait en resulter risque
de dommmages a la machine.
de dommmages a la machine.
208
208
120
120
240
240
120
120
480
480
277
277
s
d
k
l
s
h
b
= 40Nm (29.5 Ft Lbs)
L3-N = 277V
L1-L2= 480V
L2-N = 277V
L1-N = 277V
L3-L1= 480V
L2-L3= 480V
L1
1
2
N
4
3
8
L-L
12
5
6
L-N
L2
10
L3
9
7
11
L-L
L2-N = 120V
L1-L2= 208V
L3-N = 120V
L1-N = 120V
L2
L3-L1= 208V
L2-L3= 208V
5
2
6
1
N
4
12
3
11
L1
9
L3
10
8
7
L-N

Table of Contents

Related product manuals