EasyManua.ls Logo

Welbilt Convotherm 4 - Connection Diagrams; Convotherm 4 12.20 Electric Appliance

Welbilt Convotherm 4
120 pages
Print Icon
To Next Page IconTo Next Page
To Next Page IconTo Next Page
To Previous Page IconTo Previous Page
To Previous Page IconTo Previous Page
Loading...
10 Connection diagrams
10.1
Convotherm 4 12.20 electric appliance
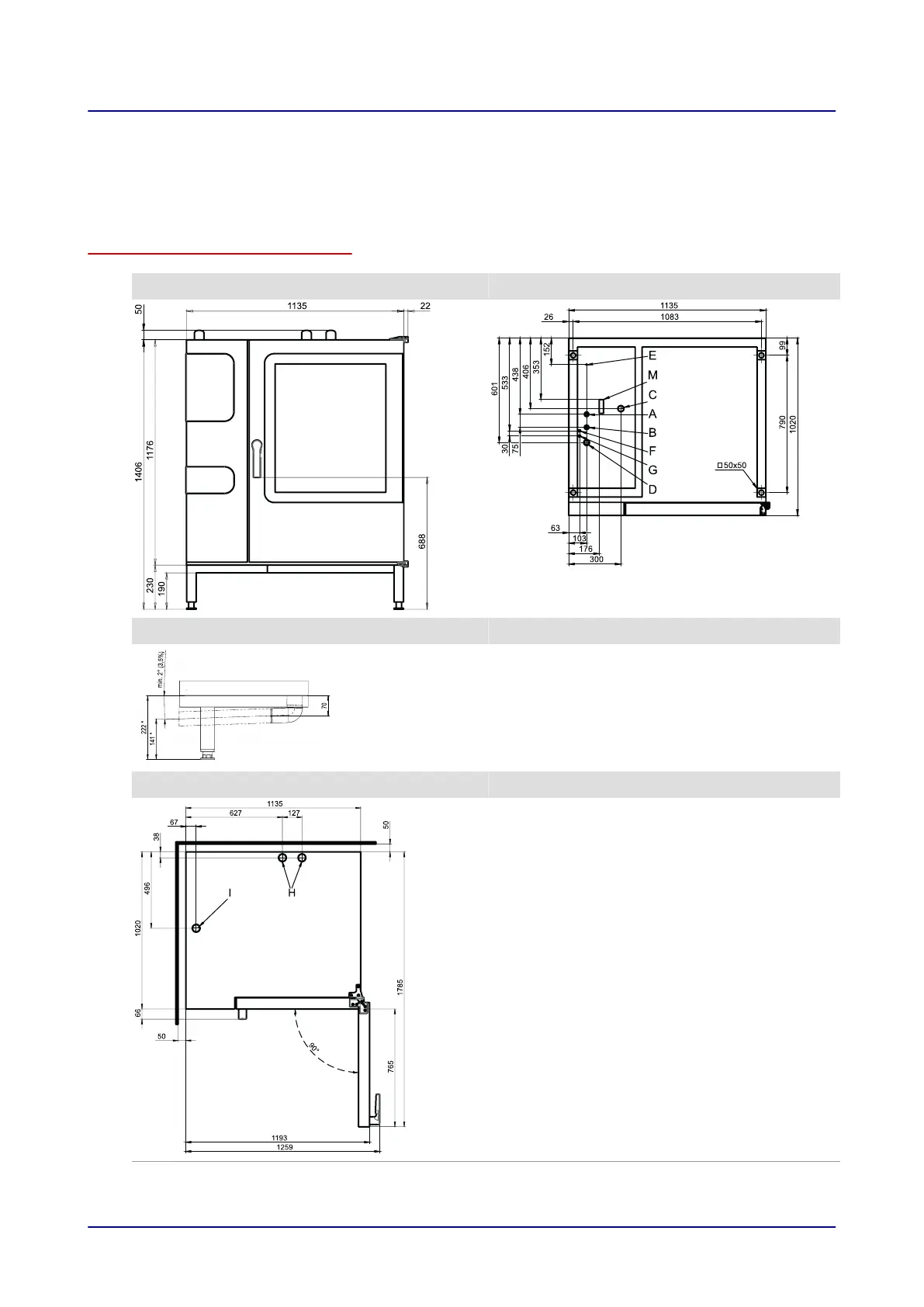
Dimensions and connection points for C4 12.20 (right-hinged appliance door)
Front view Connection points in appliance floor
Detailed view of drain connection
* Distance depends on how far the
appliance feet are extended (max. +25
mm)
View from above with wall clearances Meaning of labelled elements
A Water connection Soft water G 3/4''
B Water connection Hard water G 3/4''
C Drain connection DN 50
D Electrical connection
E Equipotential bonding
F Rinse-aid connection (optional)
G Cleaning-agent connection (optional)
H Air vent Æ 50 mm
I Ventilation port Æ 50 mm
M Safety overflow 80 x 25 mm
10 Connection diagrams
Installation manual 101

Table of Contents

Other manuals for Welbilt Convotherm 4

Related product manuals