EasyManua.ls Logo

Wolf CT - Model CTE Low Profile Hood Wiring Diagram

Wolf CT
98 pages
Print Icon
To Next Page IconTo Next Page
To Next Page IconTo Next Page
To Previous Page IconTo Previous Page
To Previous Page IconTo Previous Page
Loading...
Wiring / Schematics CT Hoods and DD Ventilation
7-5
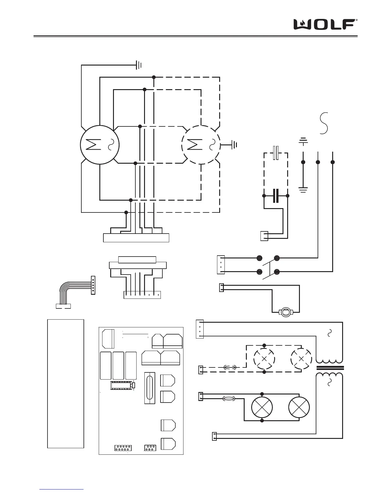
MODEL CTE LOW PROFILE HOOD WIRING DIAGRAM
CN5
CN3 CN2
CN6
FUSEFUSE
CN7
CN4
sens.
CN1
CN13
120 V12 V
ORANGE
ORANGE
BROWN
BROWN
BLACK
BLACK
WHITE
WHITE
BLUE
BLUE
RED
RED
L
N
CN13
CN12
sens. CN5 CN3 CN2
CN4CN7
CN6
CN1
CONTROL
CONTROL

Related product manuals