EasyManua.ls Logo

Xima L100 - Command Terminals Guide

Xima L100
59 pages
Print Icon
To Next Page IconTo Next Page
To Next Page IconTo Next Page
To Previous Page IconTo Previous Page
To Previous Page IconTo Previous Page
Loading...
19
Do not use a miniature or thermal switch on the output of the device.
6
Connect the ground input, if possible, in order to prevent the output noise and the
possibility of electric shock.
7
It is not mandatory to use the harmonic reduction inductance and the input/output
noise filter. (Except special cases)
8
Non-observance of the above points would cause damage to the device and invalidation
of the warranty coverage.
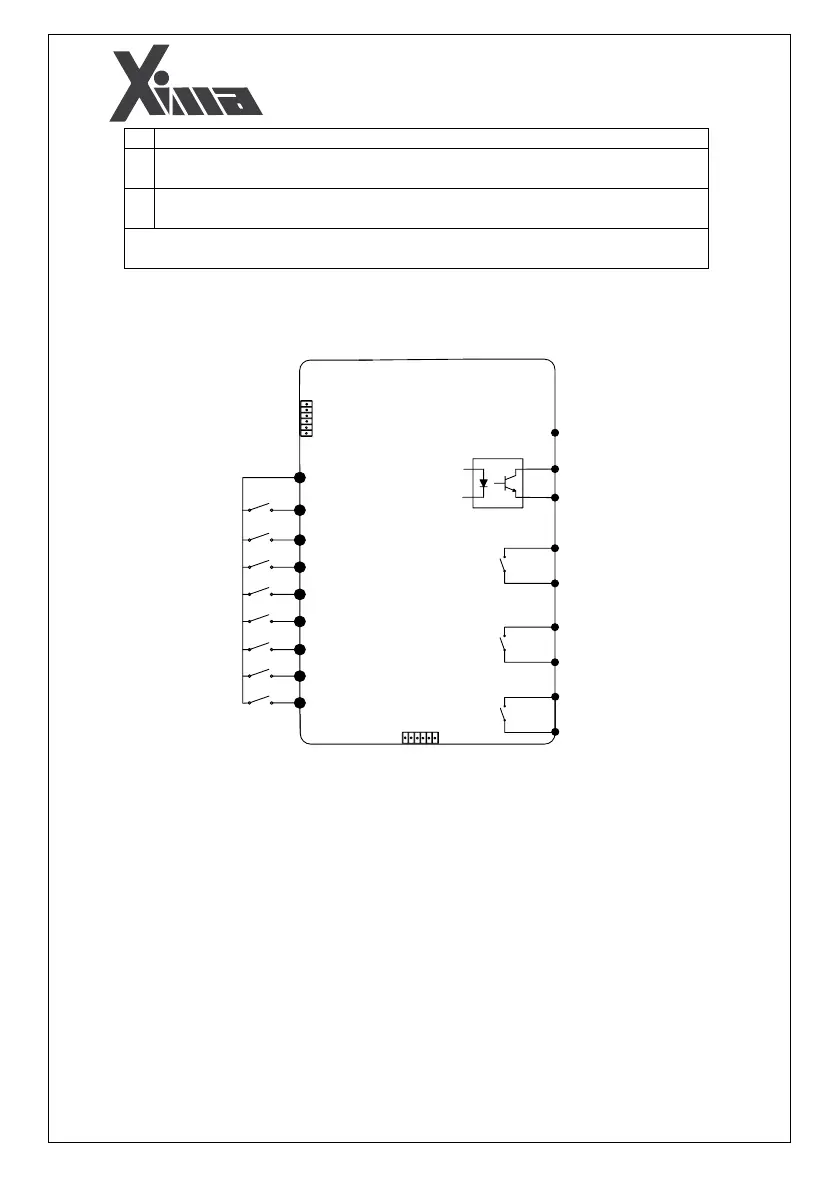
o Command Terminals
12V
I1
I2
I3
I4
I5
I7
I8
RELAY-1
Contactor
RELAY-3
COM
Intermediate
Speed
Inspection Speed
Leveling Speed
Down Command
Up Command
12V Output
Enable Input
Normal Speed
Enable Feedback
I6
Rescue Speed
OP2
RELAY-2
Brake
Fault Output
+
-
RJ45
RJ45
Fig. 9: Demonstration of digital terminal of command circuits and LAN input