EasyManua.ls Logo

YASKAWA iQpump Micro CIMR-PW Series

YASKAWA iQpump Micro CIMR-PW Series
444 pages
To Next Page IconTo Next Page
To Next Page IconTo Next Page
To Previous Page IconTo Previous Page
To Previous Page IconTo Previous Page
Loading...
3.9 Main Frequency Reference
u
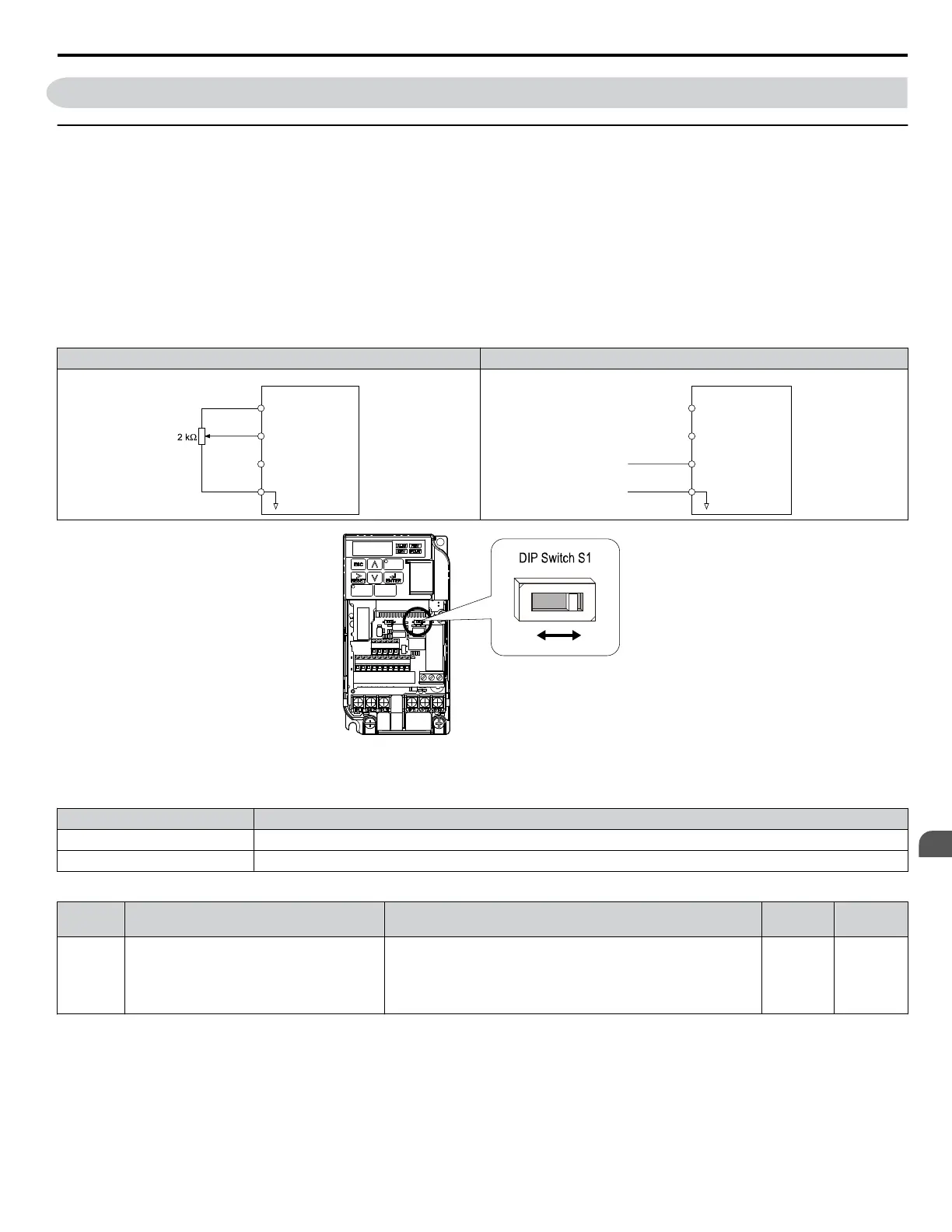
DIP Switch S1 Analog Input Signal Selection
The main frequency reference can either be a voltage or current signal input. For voltage signals both analog inputs, A1 and
A2, can be used, for current signals A2 must be used.
When using input A2 as a voltage input, set DIP switch S1 to ā€œVā€ (left position) and program parameter H3-09 to 0 (0 to +10
Vdc with lower limit) or 1 (0 to +10 Vdc without lower limit).
To use current input at terminal A2, set the DIP switch S1 to "I" (default setting) and set parameter H3-09 = 2 or 3 (4-20 mA
or 0-20 mA). Set parameter H3-10 = 0 (frequency reference).
Note: If Terminals A1 and A2 are both set for frequency reference (H3-02 = 0 and H3-10 = 0), the addition of both input values builds the frequency
reference.
Table 3.14 Frequency Reference Configurations
Voltage Input Current Input
Drive
Main speed
frequency reference
(voltage input)
Main speed
frequency reference
(current input)
Frequency reference
common
+10.5 V
20 mA current
0 to 10 V
+V
A1
A2
AC
Drive
Main speed
frequency reference
(voltage input)
Main speed
frequency reference
(current input)
Frequency reference
common
4 to 20 mA input
or
0 to 20 mA input
+10.5 V
20 mA current
+V
A1
A2
AC
V I
Figure 3.27 DIP Switch S1
Table 3.15 DIP Switch S1 Settings
Setting Value Description
V (left position) Voltage input (0 to 10 V)
I (right position) Current input (4 to 20 mA or 0 to 20 mA): default setting
Table 3.16 Parameter H3-09 Details
No. Parameter Name Description
Setting
Range
Default
Setting
H3-09
Frequency ref. (current)
terminal A2 signal level selection
Selects the signal level for terminal A2.
0: 0 to +10 V, unipolar input (with lower limit)
1: 0 to +10 V, bipolar input (no lower limit)
2: 4 to 20 mA
3: 0 to 20 mA
0 to 3 2
3.9 Main Frequency Reference
YASKAWA TOEP YAIQPM 03B YASKAWA AC Drive - iQpump Micro User Manual
61
3
Electrical Installation

Table of Contents

Related product manuals