EasyManua.ls Logo

YASKAWA Varispeed E7 - Page 17

YASKAWA Varispeed E7
290 pages
Print Icon
To Next Page IconTo Next Page
To Next Page IconTo Next Page
To Previous Page IconTo Previous Page
To Previous Page IconTo Previous Page
Loading...
XVI
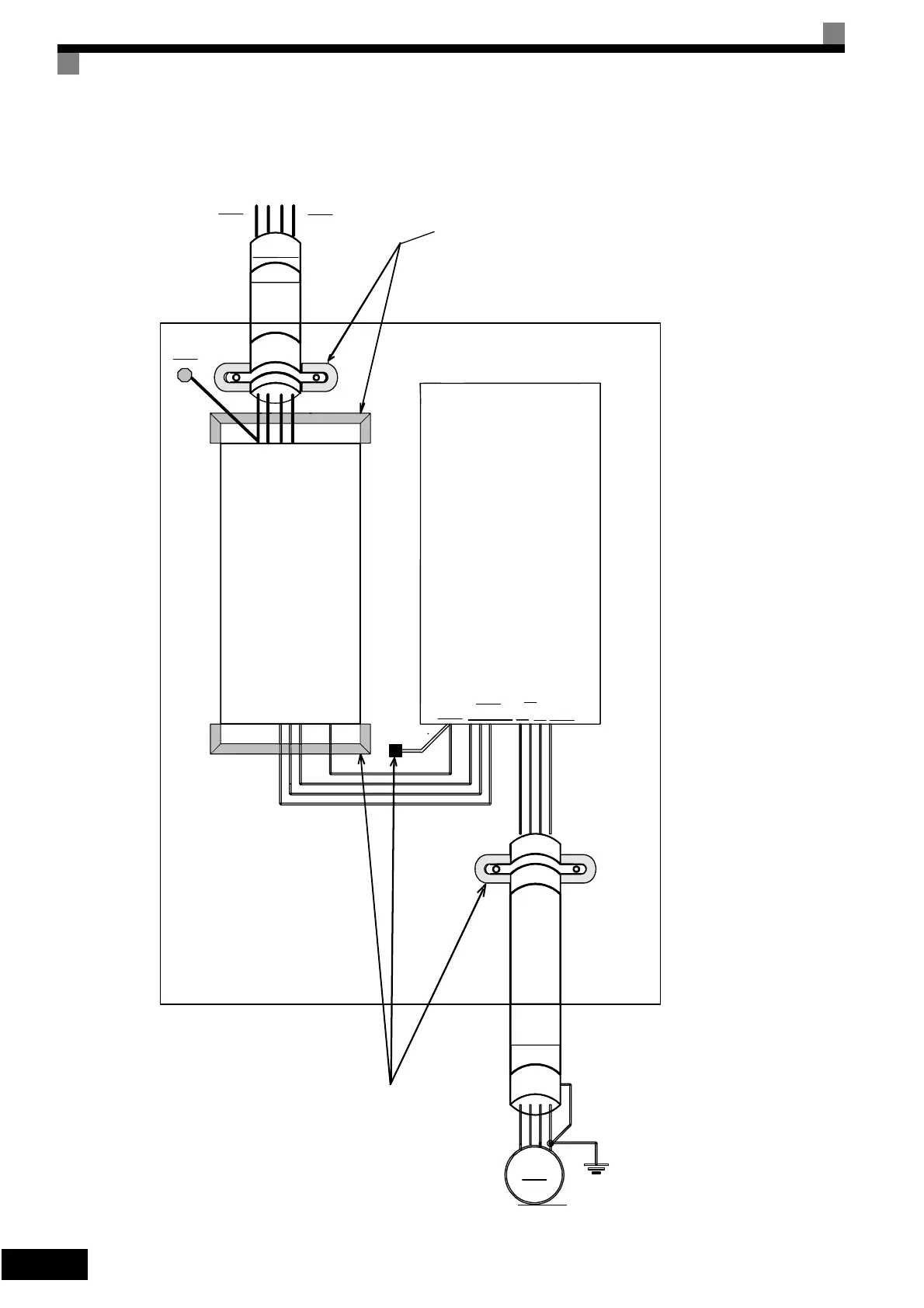
Installation inverters and EMC filters
L1
L3
L2
3~
M
U
PE
L1
L2
L3
V
WPE
Filter
Inverter
Line
Load
Ground Bonds
( remove any paint )
Cable Length
as short as possible
Ground Bonds
( remove any paint )
Metal Plate
Motor cable
screened
PE
PE
Artisan Technology Group - Quality Instrumentation ... Guaranteed | (888) 88-SOURCE | www.artisantg.com

Table of Contents

Other manuals for YASKAWA Varispeed E7

Related product manuals