EasyManua.ls Logo

YASKAWA Varispeed G7 Series - Exterior and Mounting Dimensions

YASKAWA Varispeed G7 Series
541 pages
Print Icon
To Next Page IconTo Next Page
To Next Page IconTo Next Page
To Previous Page IconTo Previous Page
To Previous Page IconTo Previous Page
Loading...
1
-6
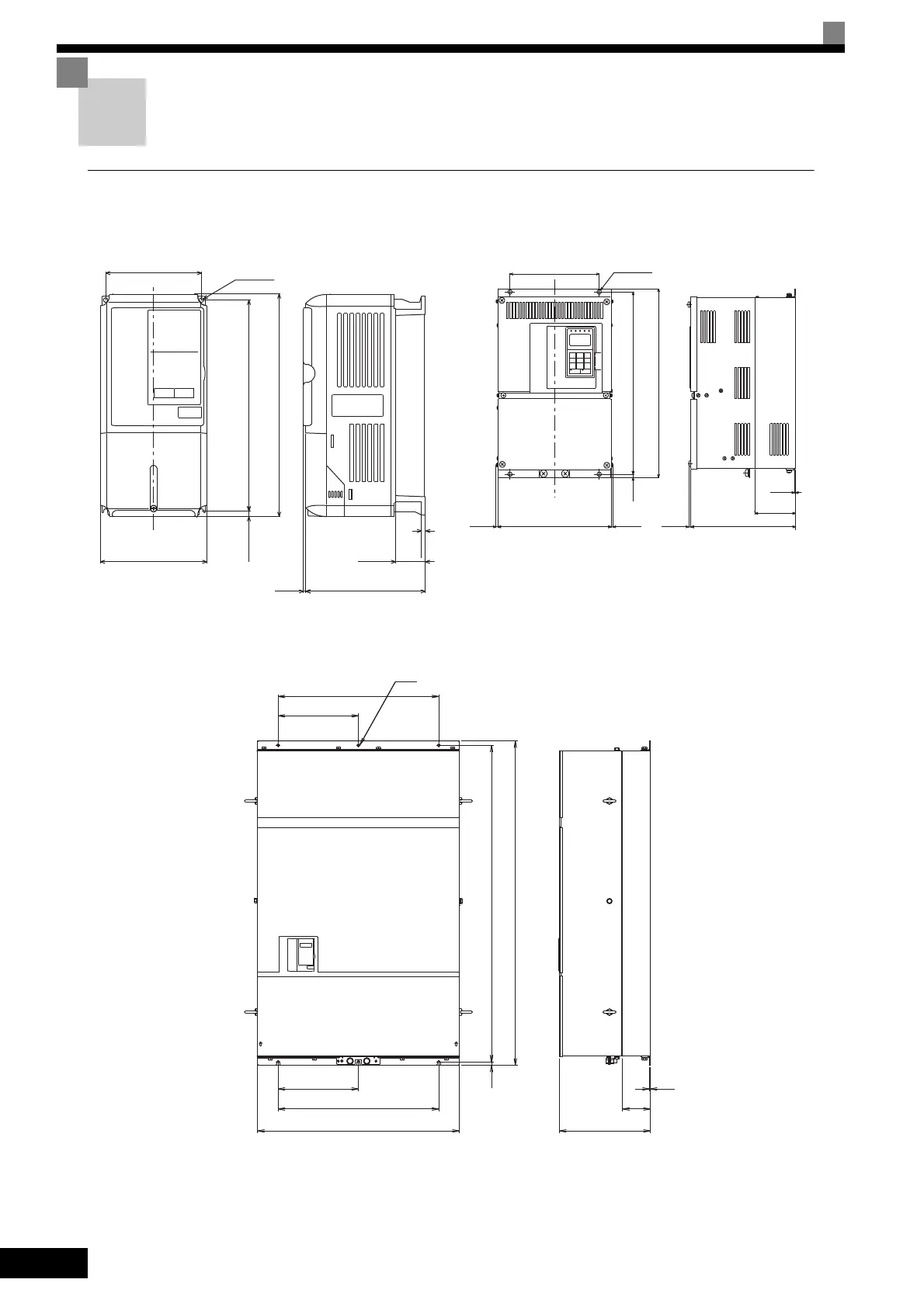
Exterior and Mounting Dimensions
Open Chassis Inverters (IP00)
Exterior diagrams of the Open Chassis Inverters are shown below.
Fig 1.6 Exterior Diagrams of Open Chassis Inverters
W
W1
3
H1H2
D
H
D1
4-d
t1
6-d
t1
D1
D
W1
W1
W
W3
W2
H
H2 H1
200 V Class Inverters of 18.5 to 110 kW
400 V Class Inverters of 18.5 to 160 kW
W
W1
4-d
H2
(5)
D1
D
H1
H
t1
(5)*
(5)*
200 V/400 V Class Inverters of 0.4 to 15 kW
400 V Class Inverters of 185 to 300 kW
* (10) for 200 V Class Inverters of 30 to 110 kW or
400 V Class Inverters of 55 to 160 kW.
TOE-S616-60.1.book 6 ージ 2017年8月4日 金曜日 午後3時41

Table of Contents

Related product manuals