EasyManua.ls Logo

YOKOGAWA 436106 - ASCII Output; BINARY Output

YOKOGAWA 436106
103 pages
To Next Page IconTo Next Page
To Next Page IconTo Next Page
To Previous Page IconTo Previous Page
To Previous Page IconTo Previous Page
Loading...
5-2
IM 04P01B01-17E
Example
E2 02:001
ASCII Output
The following types of ASCII data are available. For the data formats, see section 5.2.
Setting data, basic setting data, decimal position/unit information, measured/
computed data, report data generated by the periodic printout, status information, and
user information
Syntax
EACRLF
•••••••••••••••CRLF
:
•••••••••••••••CRLF
•••••••••••••••CRLF
ENCRLF
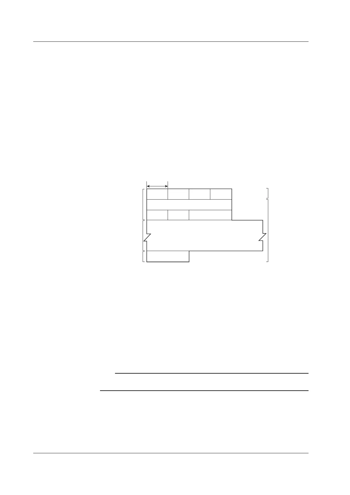
BINARY Output
Conceptual Diagram
'E' 'B' CR LF
BINARY data
ASCII
BINARY
Data length
Data sum
Flag ID
Header sum
1 byte
BINARY header
(12 bytes)
BINARY data
BINARY footer
(2 bytes)
•EB
CRLF
Indicates that the data is BINARY.
Data Length
The byte value of “flag + identifier + header sum + BINARY data + data sum.”
Header Sum
The sum value of “data length + flag + identifier.”
BINARY Data
For the output format of various data types, see section 5.3.
Data Sum
The sum value of “BINARY data.”
Note
The data length of the BINARY header section is output according to the byte order specified
with the BO command.
5.1 Response Syntax

Table of Contents

Related product manuals