EasyManua.ls Logo

AERMEC SWP200 - Page 101

AERMEC SWP200
Print Icon
To Next Page IconTo Next Page
To Next Page IconTo Next Page
To Previous Page IconTo Previous Page
To Previous Page IconTo Previous Page
Loading...
103
SWP_5287500_00
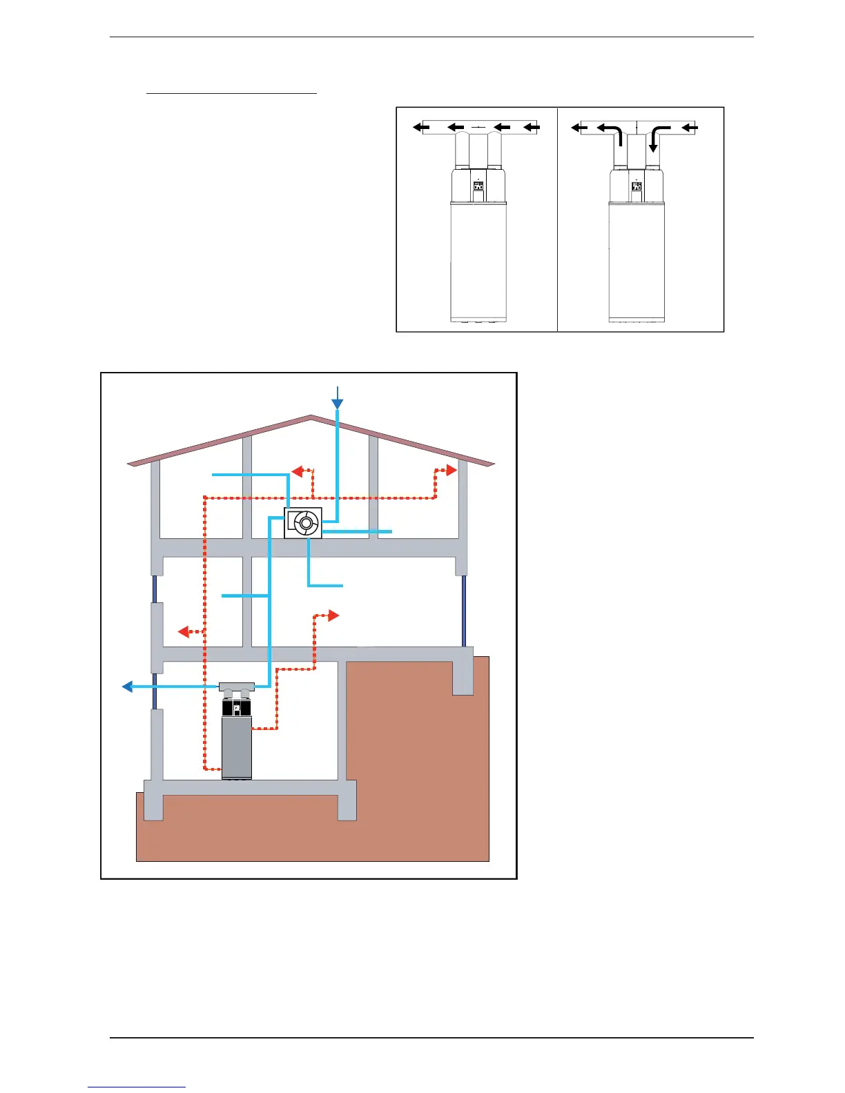
6.1. LUFTVERTEILUNG MIT MOTORGE-
STEUERTER RUNDER REGELKLAPPE
Der Luftfluss der Wärmepumpe kann über
eine motorgesteuerter Regelklappe ge-
steuert werden, wobei eine Einstellung
von 90° von komplett offen (Abb.A) und
komplett geschlossen (Abb.B) möglich
ist. Es gibt elektrisch über Servokontrolle
mit Rückholfeder gesteuerte Ventile. Die
Funktion der Klappe hängt vom Lüfter ab,
und zwar nach folgendem Prinzip: bei
stehender oder im Stand-by befindlicher
Wärmepumpe (Lüfter ausgeschaltet) ist
die Klappe nicht versorgt und die Rück-
holfeder sichert die komplette Öffnung zu
(Abb. A)
-bei laufender Wärmepumpe (Lüfter in
Funktion) ist die Klappe versorgt und so-
mit in komplett geschlossener Position
(Abb. B).
Gestrichelte Linie: Verteileranlage für
Brauchwasser
Durchgehende Linie: Gesteuerte me-
chanische Belüftungsanlage
ABB. A
ABB. B

Table of Contents

Related product manuals