EasyManua.ls Logo

AERMEC SWP200 - 10 Carte Électronique

AERMEC SWP200
Print Icon
To Next Page IconTo Next Page
To Next Page IconTo Next Page
To Previous Page IconTo Previous Page
To Previous Page IconTo Previous Page
Loading...
78
SWP_5287500_00
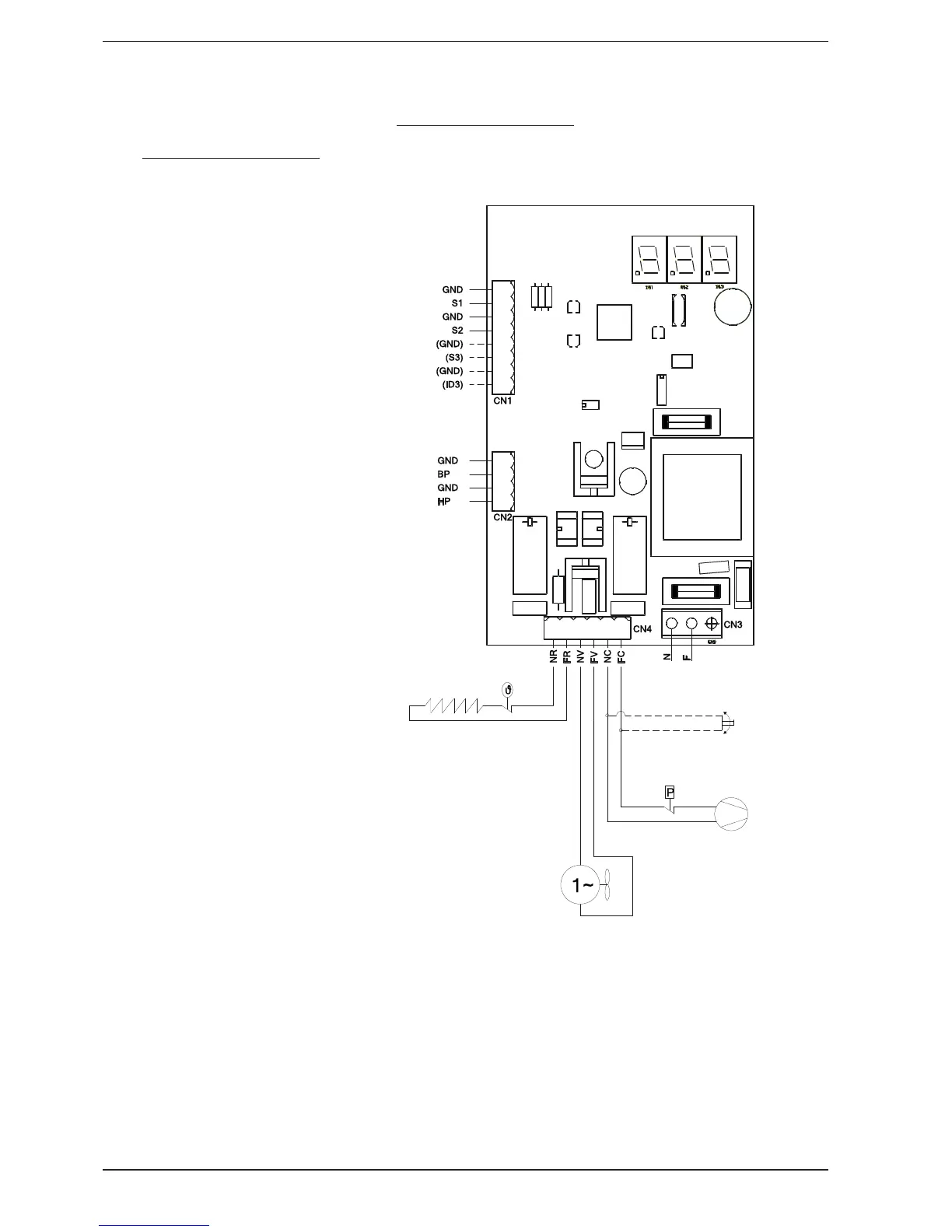
10. CARTE ÉLECTRONIQUE
10.1. DESCRIPTION DES ENTRÉES/
SORTIES DE LA CARTE
ÉLECTRONIQUE
ENTRÉES NUMÉRIQUES :
HP= haute pression
BP= basse pression
(ID3)= uniquement prédisposition
entrée ENTRÉES ANALOGIQUES :
S1=
sonde eau
S2=
sonde air
(S3= uniquement prédisposition
entrée)
SORTIES RELAIS :
NR,FR= autorisation allumage
résistance
NV,FC= autorisation allumage
ventilateur
NC,FC= autorisation allumage
compresseur (et, en
parallèle, servocommande
éventuelle pour distributeur
D160S)
10.2. SCHÉMA CARTE ÉLECTRONIQUE
sonde eau
sonde air internes
sonde d'air
optionnelle
RÉSISTANCE
VENTILATEUR
COMPRESSEUR
(ÉVENTUELLE SERVOCOMMANDE POUR D160S)
ALIMENTATION

Table of Contents

Related product manuals