EasyManua.ls Logo

AERMEC SWP200 - Beschreibung Eingänge;Ausgänge; 10 Elektronikplatine; Schema Elektronikplatine

AERMEC SWP200
Print Icon
To Next Page IconTo Next Page
To Next Page IconTo Next Page
To Previous Page IconTo Previous Page
To Previous Page IconTo Previous Page
Loading...
108
SWP_5287500_00
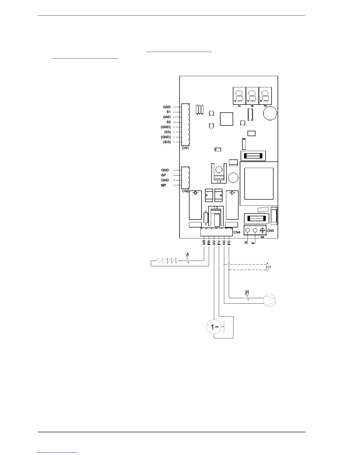
10. ELEKTRONIKPLATINE
10.1. BESCHREIBUNG EINGÄNGE/
AUSGÄNGE ELEKTRONIKPLA-
TINE
DIGITALEINGÄNGE:
HP= hoher Druck
BP= niedriger Druck
(ID3)= nur Vorbereitung Eingang ANA-
LOGE EINGÄNGE:
S1=
Wasserfühler
S2=
Luftfühler
(S3)= nur Vorbereitung Eingang)
AUSGÄNGE RELAIS:
NR,FR= Zustimmung Einschaltung
Widerstand
NV,FC= Zustimmung Einschaltung
Lüfter
NC,FC= Zustimmung Einschaltung
Verdichter (und parallel
eventuelle Servosteuerung
für Verteiler D160S)
10.2. SCHEMA ELEKTRONIKPLATINE
WASSERFÜHLER
LUFTFÜHLER INTERN
LUFTFÜHLER
FAKULTATIV
WIDERSTAND
LÜFTER
VERDICHTER
(EVENTUELLE SERVOSTEUERUNG FÜR D160S)
STROMVERSORGUNG

Table of Contents

Related product manuals