EasyManua.ls Logo

AERMEC SWP200 - Distribución del Aire con Compuerta; Circular Motorizada

AERMEC SWP200
Print Icon
To Next Page IconTo Next Page
To Next Page IconTo Next Page
To Previous Page IconTo Previous Page
To Previous Page IconTo Previous Page
Loading...
133
SWP_5287500_00
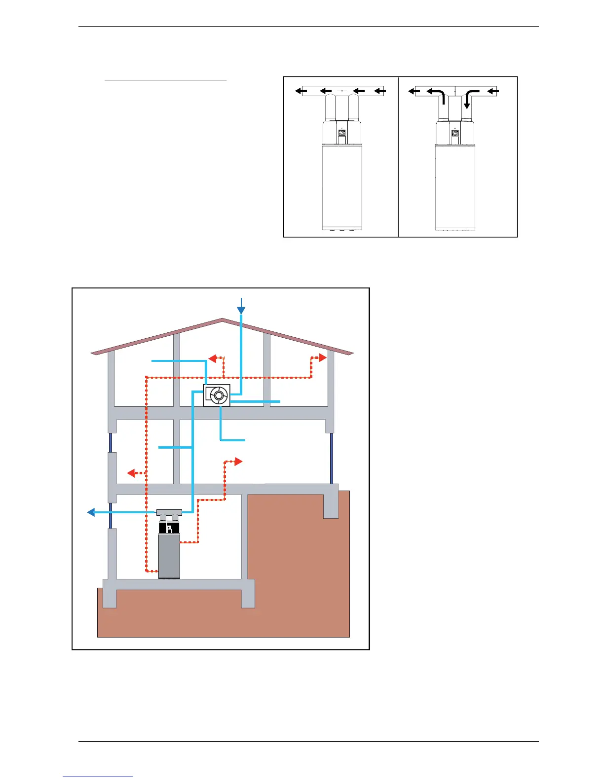
6.1. DISTRIBUCIÓN DEL AIRE
CON COMPUERTA CIRCULAR
MOTORIZADA
Es posible administrar el flujo de aire de
la bomba de calor a través de una com-
puerta motorizada que permite una re-
gulación de 90°, desde completamente
abierta (fig.A) hasta completamente ce-
rrada (fig.B). Existen válvulas accionadas
eléctricamente mediante servomando
con retorno a resorte. El funcionamiento
de la compuerta depende del estado
del ventilador, según el siguiente prin-
cipio: con la BdC parada o en espera
(ventilador apagado) la compuerta está
desalimentada y, por lo tanto, el retorno
a resorte garantiza la posición de com-
pleta apertura (fig. A)
-con la BdC activa (ventilador en funcio-
namiento) la compuerta está alimenta-
da y, por lo tanto, completamente cerra-
da (fig. B).
Línea punteada: Instalación de distri-
bución para ACS
Línea continua: Instalación de ventila-
ción mecánica controlada
FIG. A
FIG. B

Table of Contents

Related product manuals