EasyManua.ls Logo

AERMEC SWP200 - Distribution de Lair Par Registre

AERMEC SWP200
Print Icon
To Next Page IconTo Next Page
To Next Page IconTo Next Page
To Previous Page IconTo Previous Page
To Previous Page IconTo Previous Page
Loading...
73
SWP_5287500_00
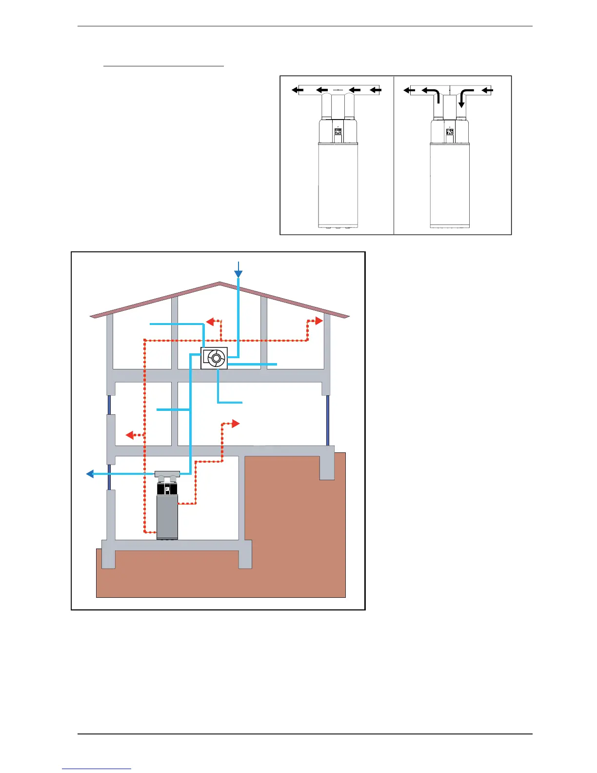
6.1. DISTRIBUTION DE L’AIR PAR
REGISTRE CIRCULAIRE MOTORISÉ
Il est possible de gérer le flux d’air de la
pompe à chaleur à l’aide d’un registre
motorisé permettant un réglage de 90°
allant de complètement ouvert (fig.A) à
complètement fermé (fig.B). Il existe des
valves actionnées électriquement par
servocommande avec retour à ressort. Le
fonctionnement du registre est lié à l’état
du ventilateur, selon le principe suivant :
quand la PàC est à l’arrêt ou en stand-
by (ventilateur éteint) le registre est désa-
limenté et le retour à ressort assure une
ouverture totale (fig. A)
- quand la PàC est activée (ventilateur
en marche) le registre est alimenté et
donc totalement fermé (fig. B)
Ligne en pointillé : Installation de distri-
bution d’ECS
Ligne continue : Installation de venti-
lation mécanique contrôlée
FIG. A
FIG. B

Table of Contents

Related product manuals