EasyManua.ls Logo

AERMEC SWP200 - Air Distribution with Motorised Circular Shutter

AERMEC SWP200
Print Icon
To Next Page IconTo Next Page
To Next Page IconTo Next Page
To Previous Page IconTo Previous Page
To Previous Page IconTo Previous Page
Loading...
43
SWP_5287500_00
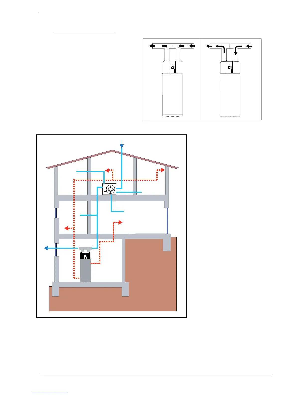
6.1. AIR DISTRIBUTION WITH
MOTORISED CIRCULAR SHUTTER
The heat pump airflow can be controlled
by means of a motorised shutter, offering
90° adjuststment from completely open
(fig.A) to completely closed (fig.B). The
valves are activated electrically, using
a servocontrol with spring return. Shutter
operation is linked to the fan status, in
accordance with the following principle:
while the HP is in standby (fan off), the
shutter is not powered and therefore the
spring return guarantees the completely
open position (fig.A);
- while the HP is running (fan on) the
shutter is powered and therefore in the
completely closed position (fig.B).
dotted line: DHW distribution system
solid line: controlled mechanical ven-
tilation system
FIG. A
FIG. B

Table of Contents

Related product manuals