EasyManua.ls Logo

AERMEC SWP200 - Distribuzione Dellaria con Serranda; Motorizzata

AERMEC SWP200
Print Icon
To Next Page IconTo Next Page
To Next Page IconTo Next Page
To Previous Page IconTo Previous Page
To Previous Page IconTo Previous Page
Loading...
11
SWP_5287500_00
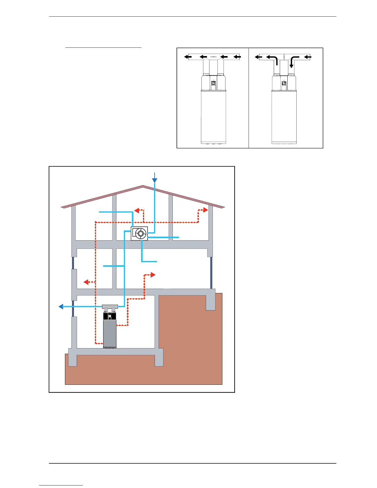
7.1. DISTRIBUZIONE DELL’ARIA CON
SERRANDA CIRCOLARE
MOTORIZZATA
È possibile gestire il flusso d’aria della
pompe di calore attraverso una serranda
motorizzata, consentendo una regola-
zione di 90° da completamente aperta
(fig.A) a completamente chiusa (fig.B).
Esistono valvole azionate elettricamente,
mediante servocomando con ritorno a
molla. Il funzionamento della serranda è
legato allo stato del ventilatore, secondo
il seguente principio: con PdC ferma o in
stand-by (ventilatore spento) la serranda
è disalimentata e quindi il ritorno a molla
garantisce la posizione di completa aper-
tura (fig. A);
- Con PdC attiva (ventilatore in funzione)
la serranda è alimentata e quindi in posizi
one di completa chiusura (fig. B).
linea tratteggiata: Impianto di distribu-
zione per ACS
Linea continua: Impianto di ventilazio-
ne meccanica controllata
FIG. A
FIG. B

Table of Contents

Related product manuals