EasyManua.ls Logo

AERMEC SWP200 - Descrizione Ingressi;Uscite Scheda Elettronica; 10 Scheda Elettronica; Schema Scheda Elettronica

AERMEC SWP200
Print Icon
To Next Page IconTo Next Page
To Next Page IconTo Next Page
To Previous Page IconTo Previous Page
To Previous Page IconTo Previous Page
Loading...
16
SWP_5287500_00
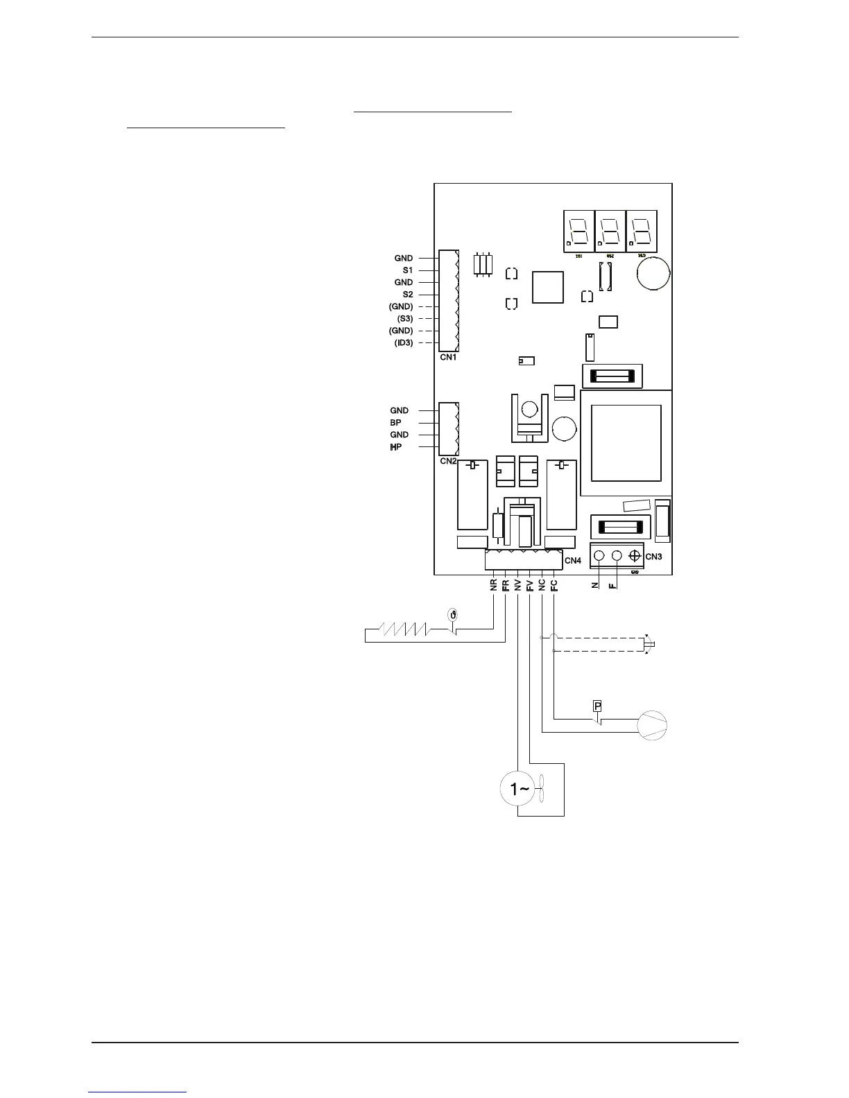
11. SCHEDA ELETTRONICA
11.1. DESCRIZIONE INGRESSI/USCITE
SCHEDA ELETTRONICA
INGRESSI DIGITALI:
HP= alta pressione
BP= bassa pressione
(ID3)= solo predisposizione ingresso
INGRESSI ANALOGICI:
S1= sonda acqua
S2= sonda aria interna
(S3= solo predisposizione ingresso)
USCITE RELE’:
NR,FR= consenso accensione
resistenza
NV,FC= consenso accensione
ventilatore
NC,FC= consenso accensione com
pressore (e, in parallelo,
eventuale servocomando
per distributore D160S)
11.2. SCHEMA SCHEDA ELETTRONICA
sonda acqua
sonda aria
interno
sonda aria
(opzionale)
resistenza
ventilatore
compressore
(eventuale servocomando per D160S)
alimentazione

Table of Contents

Related product manuals