EasyManua.ls Logo

AGI HI ROLLER - Page 61

Default Icon
134 pages
Print Icon
To Next Page IconTo Next Page
To Next Page IconTo Next Page
To Previous Page IconTo Previous Page
To Previous Page IconTo Previous Page
Loading...
HI ROLLER - BELT CONVEYORS 5. INSTALLATION
HI ROLLER, MINI ROLLER, LO ROLLER & HI LIFE 5.9. HAZARD MONITORING DEVICES
P115506 R3 61
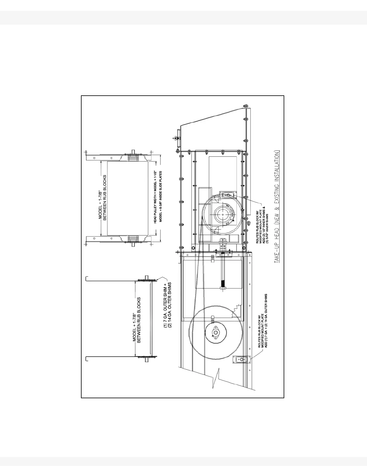
HEAD TAKE-UP SECTION (Figure 5.36)
The head pulley and belt alignment can be monitored with one rub block
installed near the front centerline of the head pulley on the take-up slide plate
to detect a belt and head pulley misalignment.
The return belt alignment can be monitored with one rub block installed on
the bottom return belt, and will detect a return belt misalignment.
Figure 5.36

Table of Contents

Related product manuals