EasyManua.ls Logo

AGI HI ROLLER - Page 63

Default Icon
134 pages
Print Icon
To Next Page IconTo Next Page
To Next Page IconTo Next Page
To Previous Page IconTo Previous Page
To Previous Page IconTo Previous Page
Loading...
HI ROLLER - BELT CONVEYORS 5. INSTALLATION
HI ROLLER, MINI ROLLER, LO ROLLER & HI LIFE 5.9. HAZARD MONITORING DEVICES
P115506 R3 63
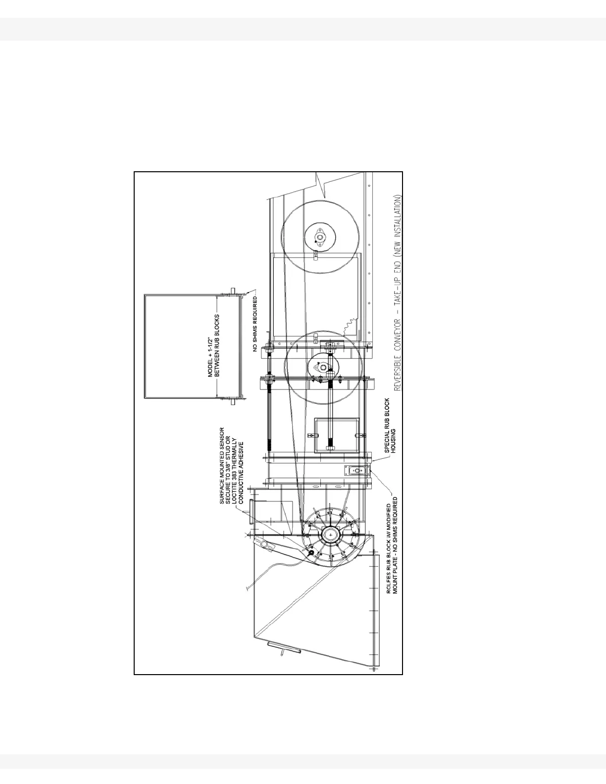
REVERSIBLE NON-DRIVE END SECTION—NEW (Figure 5.38)
The non-drive pulley alignment can be monitored with one surface mounted
sensor block installed near the front centerline of the non-drive pulley to
detect a non-drive pulley misalignment.
The return belt alignment can be monitored with one rub block installed on
the bottom return belt in the special section for mounting the sensor, and will
detect a return belt misalignment.
Figure 5.38

Table of Contents

Related product manuals