EasyManua.ls Logo

AGI HI ROLLER - Page 64

Default Icon
134 pages
Print Icon
To Next Page IconTo Next Page
To Next Page IconTo Next Page
To Previous Page IconTo Previous Page
To Previous Page IconTo Previous Page
Loading...
5. INSTALLATION HI ROLLER - BELT CONVEYORS
5.9. HAZARD MONITORING DEVICES HI ROLLER, MINI ROLLER, LO ROLLER & HI LIFE
64 P115506 R3
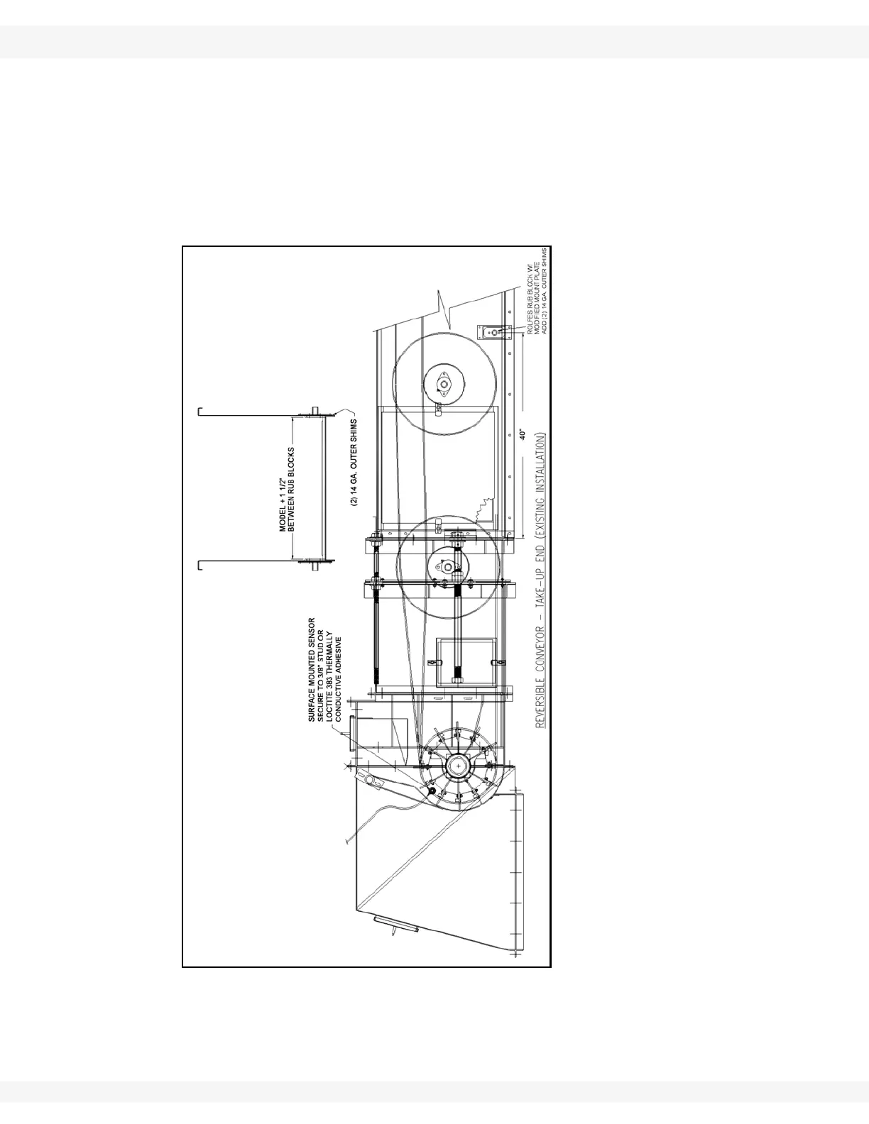
REVERSIBLE NON-DRIVE END SECTION—EXISTING (Figure 5.39)
The non-drive pulley alignment can be monitored with one surface mounted
sensor block installed near the front centerline of the non-drive pulley to
detect a non-drive pulley misalignment.
The return belt alignment can be monitored with one rub block installed on
the bottom return belt in the existing trunking section, and will detect a return
belt misalignment.
Figure 5.39

Table of Contents

Related product manuals