EasyManua.ls Logo

ahlmann AS 210 - Page 82

Default Icon
116 pages
Print Icon
To Next Page IconTo Next Page
To Next Page IconTo Next Page
To Previous Page IconTo Previous Page
To Previous Page IconTo Previous Page
Loading...
2-4
1-4
10-1
10.1 - 06.2005
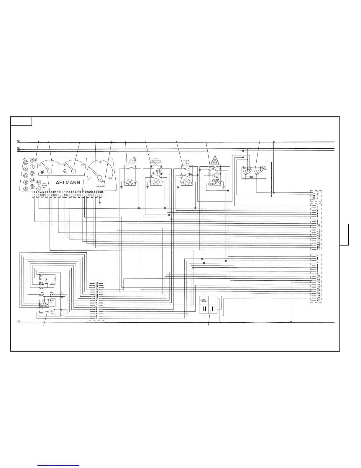
Elektrik-Schaltplan/Schéma électrique/Wiring diagramm/Elektrisch schakelschema
12 3 4 5 6 7 8 9
10
12
S220/S221/S230/S231/Z200
IA
IB
IC
11

Table of Contents

Related product manuals