EasyManua.ls Logo

Autronica Autro Safe BS-310 - Page 28

Autronica Autro Safe BS-310
64 pages
Print Icon
To Next Page IconTo Next Page
To Next Page IconTo Next Page
To Previous Page IconTo Previous Page
To Previous Page IconTo Previous Page
Loading...
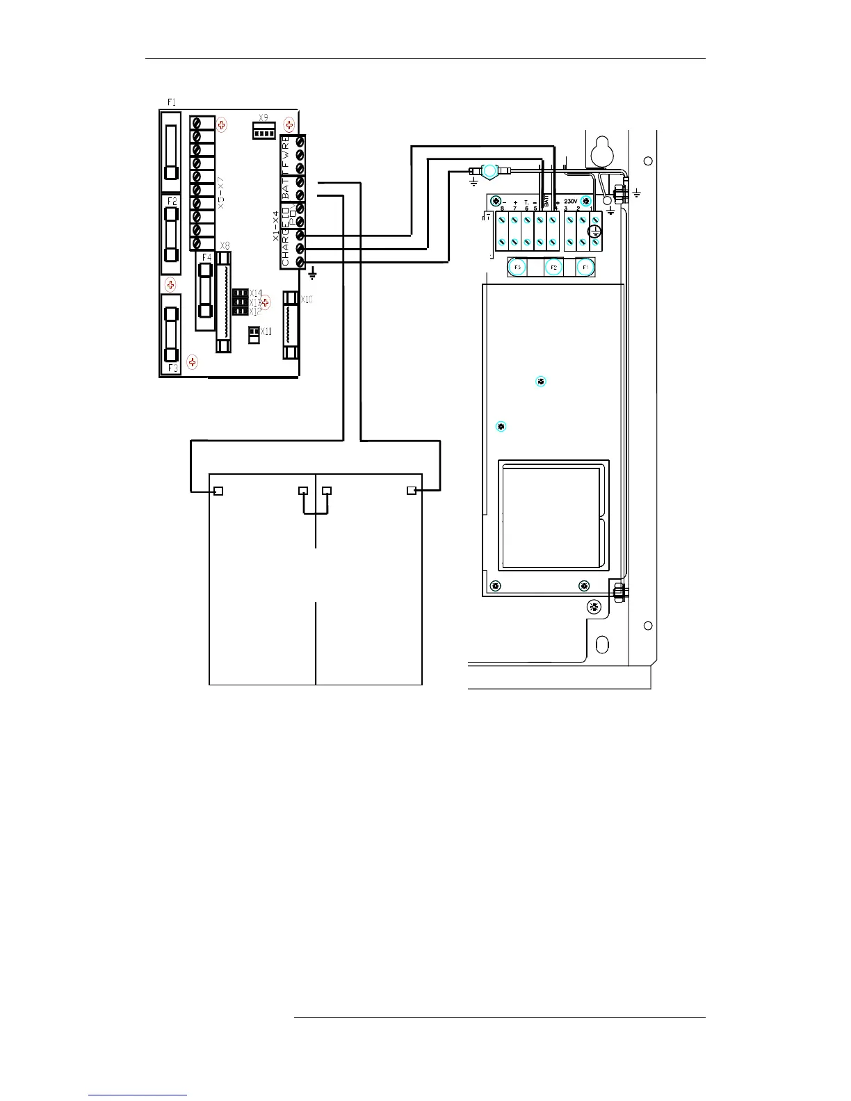
Internal Cable Connections
Installation Handbook, AutroSafe Interactive Fire Alarm System, Release 3, 116-P-ASAFE-FA/DE,
Rev. J, 2011-12-06,
Autronica Fire and Security AS
Power Supply
+
-
+
-
+
-
24V / 12Ah
Battery
+
+
- --
+

Table of Contents

Related product manuals