EasyManua.ls Logo

Avaya G430 - Page 39

Avaya G430
144 pages
Print Icon
To Next Page IconTo Next Page
To Next Page IconTo Next Page
To Previous Page IconTo Previous Page
To Previous Page IconTo Previous Page
Loading...
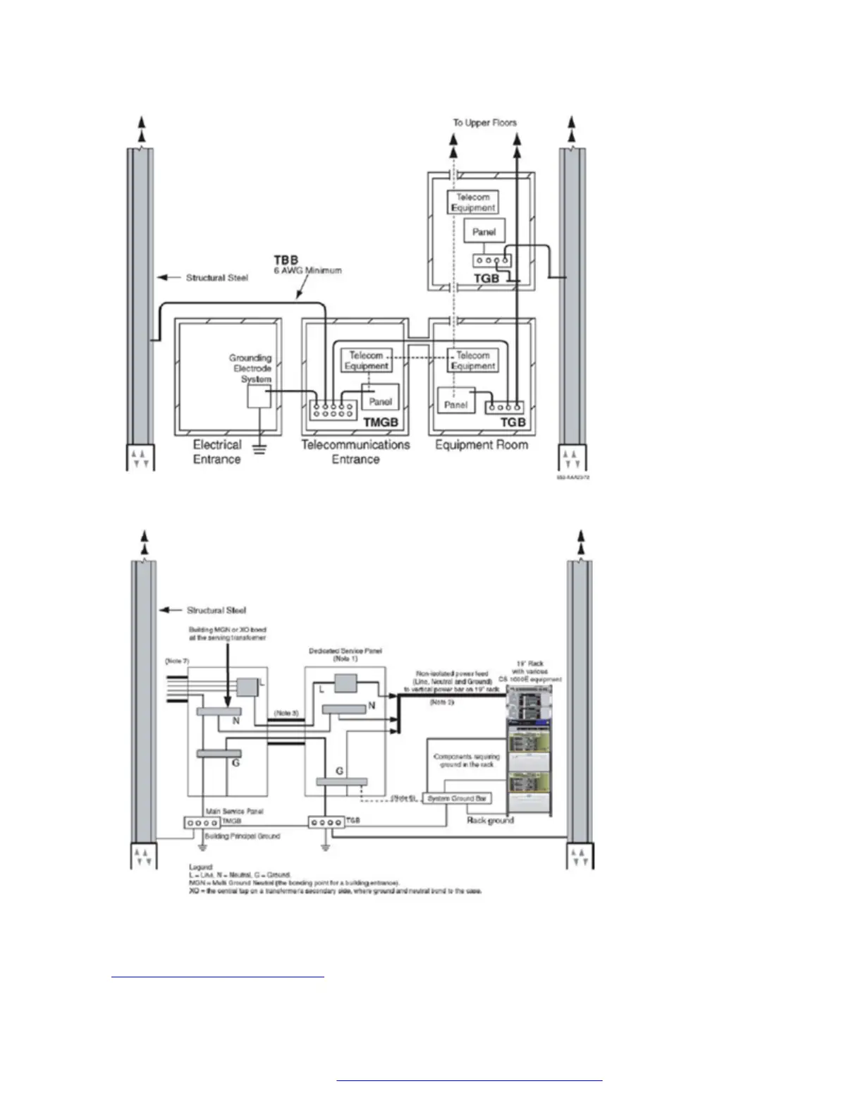
Figure 7: ANSI/TIA/EIA-607 Grounding Schematic
Figure 8: Typical Wiring Plan
Related links
Ground conductor attachments on page 34
Ground conductor attachments
July 2018 Deploying and Upgrading Avaya G430 Branch Gateway 39
Comments on this document? infodev@avaya.com

Table of Contents

Other manuals for Avaya G430

Related product manuals