EasyManua.ls Logo

BendPak PL-6000DC - Page 20

BendPak PL-6000DC
96 pages
Print Icon
To Next Page IconTo Next Page
To Next Page IconTo Next Page
To Previous Page IconTo Previous Page
To Previous Page IconTo Previous Page
Loading...
PL-6000DC/DCX Two-Post Parking Lift 20 P/N 5900273Rev. A6 —July 2024
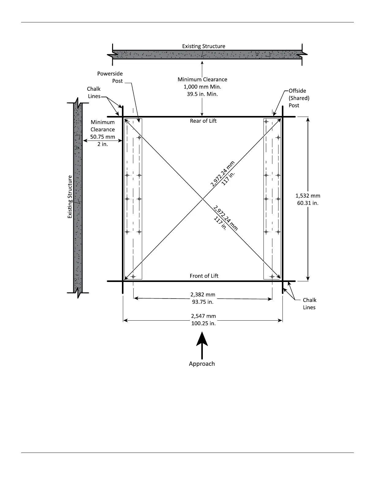
Chalk Lines PL-6000DC:
Drawing not to scale.

Related product manuals