EasyManua.ls Logo

BendPak PL-6000DC - Page 21

BendPak PL-6000DC
96 pages
Print Icon
To Next Page IconTo Next Page
To Next Page IconTo Next Page
To Previous Page IconTo Previous Page
To Previous Page IconTo Previous Page
Loading...
PL-6000DC/DCX Two-Post Parking Lift 21 P/N 5900273Rev. A6 —July 2024
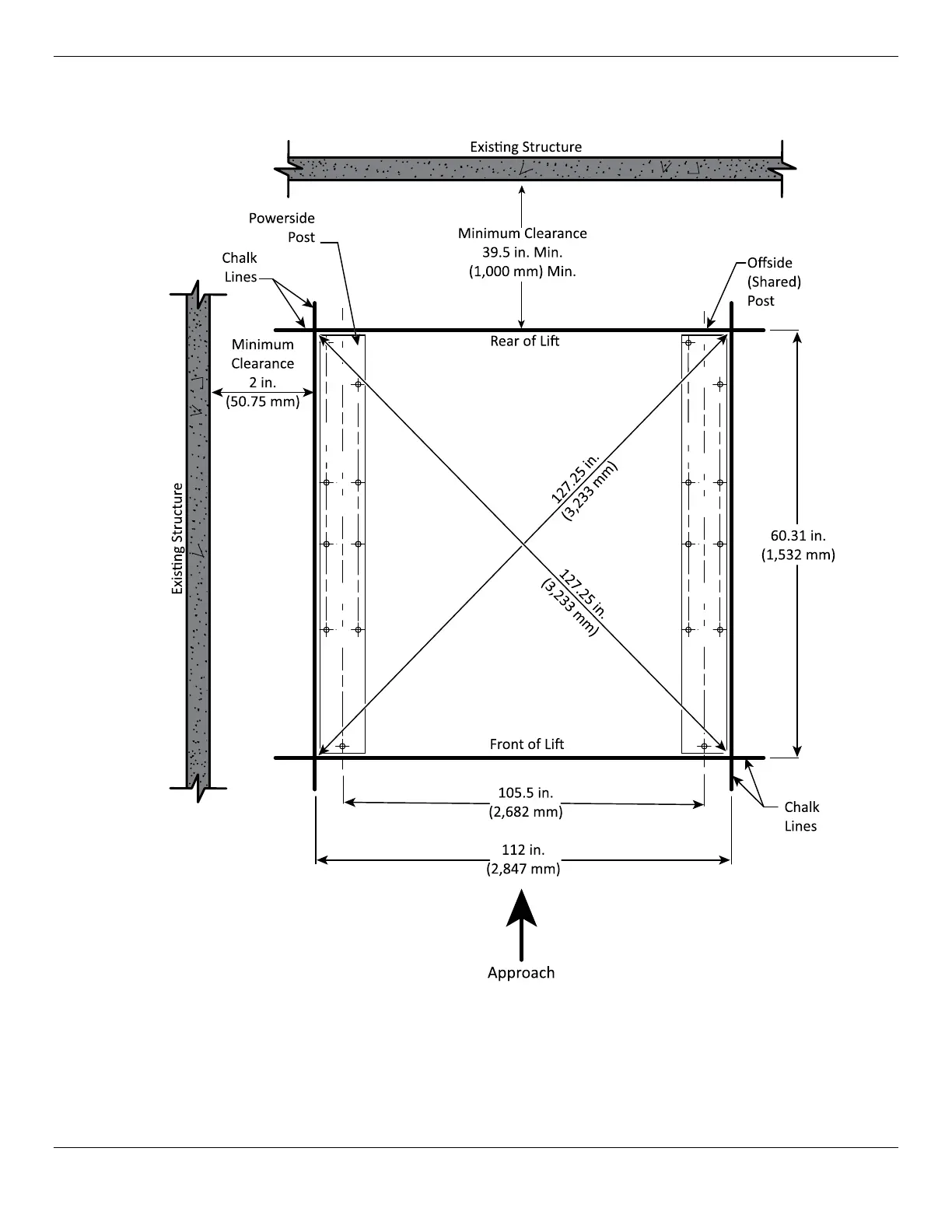
Chalk Lines PL-6000DCX:

Related product manuals