EasyManua.ls Logo

Cadel nice - Onderdelen Van de Schoorsteen

Cadel nice
Print Icon
To Next Page IconTo Next Page
To Next Page IconTo Next Page
To Previous Page IconTo Previous Page
To Previous Page IconTo Previous Page
Loading...
189
NICE - MIRIAM - CRISTAL - LEONORA - PRETTY - DIANA - KRISS - MARY
NL
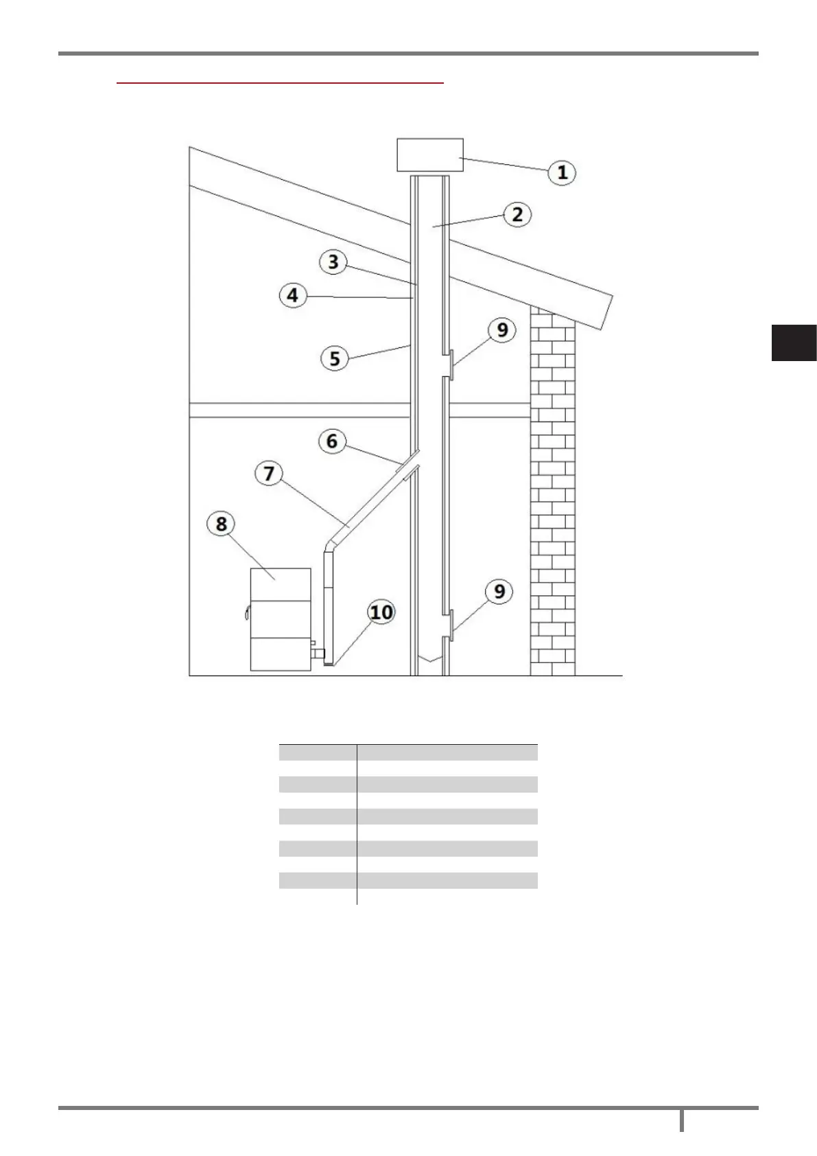
7.7 ONDERDELEN VAN DE SCHOORSTEEN
Fig. 6 - Onderdelen van de schoorsteen
LEGENDA Fig. 6 op pag. 189
1 Schoorsteenpot
2 Uitstroomweg
3 Rookkanaal
4 Thermische isolatie
5 Buitenmuur
6 Aansluiting van de schoorsteen
7 Rookleiding
8 Warmtegenerator
9 Inspectieluikje
10 T-aansluiting met inspectiedop

Table of Contents

Other manuals for Cadel nice

Related product manuals