EasyManua.ls Logo

Cadel nice - Chimney Components

Cadel nice
Print Icon
To Next Page IconTo Next Page
To Next Page IconTo Next Page
To Previous Page IconTo Previous Page
To Previous Page IconTo Previous Page
Loading...
55
NICE - MIRIAM - CRISTAL - LEONORA - PRETTY - DIANA - KRISS - MARY
EN
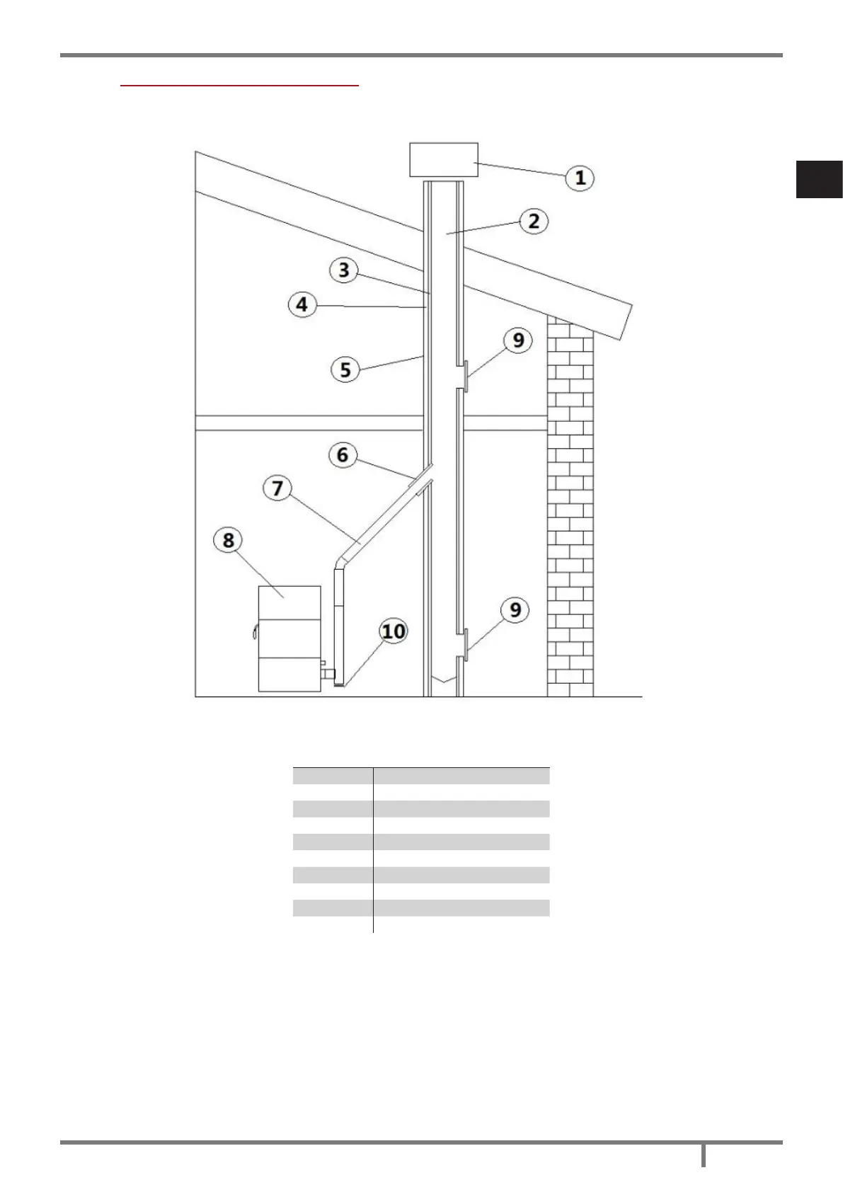
7.7 CHIMNEY COMPONENTS
Fig. 6 - Chimney components
LEGEND Fig. 6 page 55
1 Chimney pot
2 Fume outlet
3 Chimney ue
4 Termal insulation
5 External wall
6 Chimney union
7 Fume pipe
8 Heat generator
9 Inspection door
10 T-union with inspection plug

Table of Contents

Other manuals for Cadel nice

Related product manuals