EasyManua.ls Logo

Condair UDC - Page 32

Condair UDC
148 pages
Print Icon
To Next Page IconTo Next Page
To Next Page IconTo Next Page
To Previous Page IconTo Previous Page
To Previous Page IconTo Previous Page
Loading...
32 Condair CDC, CDC-NA, CDC-ST and CDC-SL
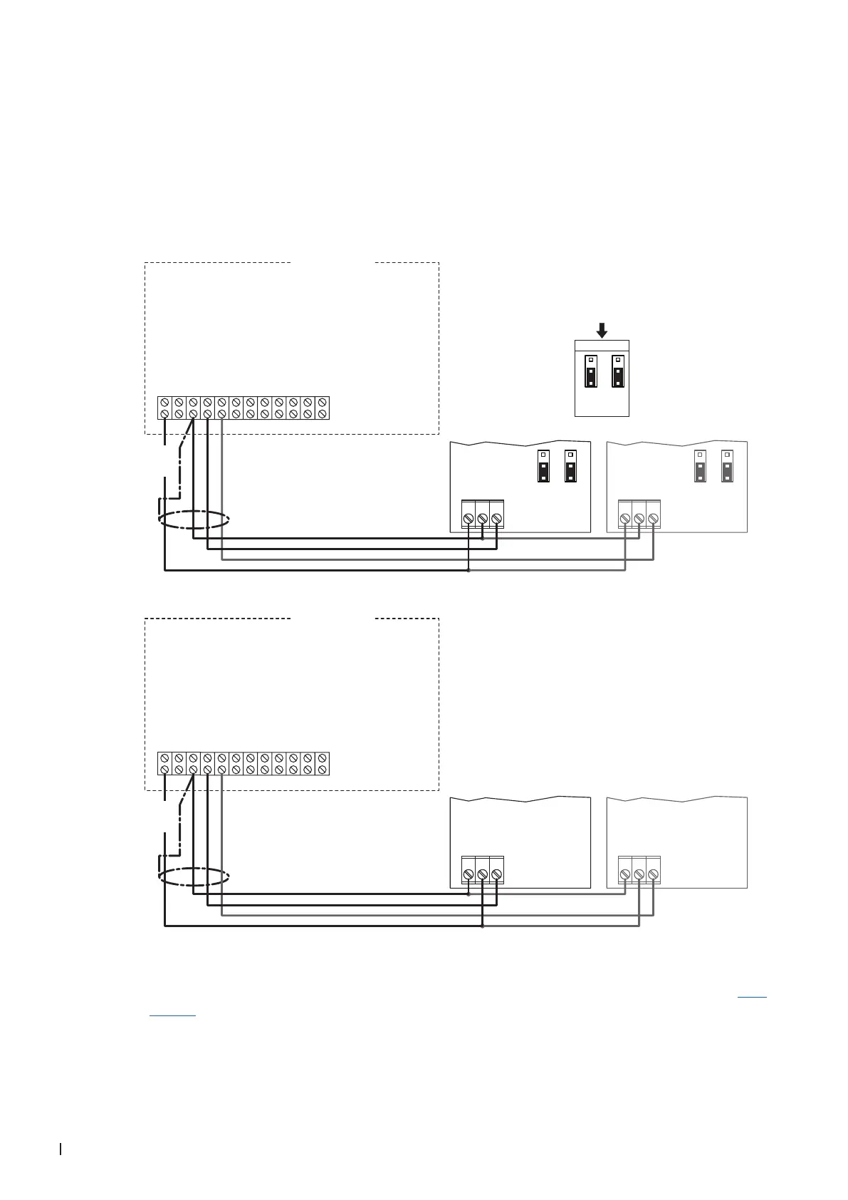
2.8.6 Connecting the CDC or CDC-NA to the Condair SE
1. Connect the CDC or CDC-NA (signal Y1) to the corresponding terminals of the Condair SE accord-
ing to the appropriate wiring diagram (see below).
Note: The voltage supply of the CDC or CDC-NA is established via the terminals "24 VAC" and
"Ground" of the terminal block or via an external 24 V AC/DC voltage supply.
Note: In case of humidity control with limitation of the supply air humidity, a second CDC or CDC-NA
duct humidity sensor (signal Y2) is to be connected according to the appropriate wiring diagram below.
2. Only for CDC: Set the output signal of the CDC to "0-10V" using the Jumpers JP1 and JP3 on the
control board of the CDC.
Note: other output signal settings (e.g. 4-20mA) are also possible, see CDC jumper settings in Sec-
tion 2.7.
12
11
10
9
8
76
54
321
24VAC
0-10V VDC Out
On/Off Loop
Ground
Actuator Power
Actuator Power
Control Signal
Limit Signal (SETC only)
Full Tank Blowdown
Ground
Ground
5 VDC
Condair SE
***
0...10V
JP1
2
3
1
JP3
2
3
1
24 VAC
12
11
10
9
8
76
54
321
24VAC
0-10V VDC Out
On/Off Loop
Ground
Actuator Power
Actuator Power
Control Signal
Limit Signal (SETC only)
Full Tank Blowdown
Ground
Ground
5 VDC
Condair SE
24V AC/DC
0V/GND
H OUT
JP1
2
3
1
JP3
2
3
1
***
1 2 3
24V AC/DC
0V/GND
H OUT
JP1
2
3
1
JP3
2
3
1
***
1 2 3
24 VAC
0V/GND
24V AC/DC
H OUT
1 2 3
0V/GND
24V AC/DC
H OUT
1 2 3
CDC (Signal Y1)
CDC-NA (Signal Y1)
CDC (Signal Y2)
CDC-NA (Signal Y2)

Table of Contents

Related product manuals