EasyManua.ls Logo

Crestron TST-902 - Page 69

Crestron TST-902
120 pages
Print Icon
To Next Page IconTo Next Page
To Next Page IconTo Next Page
To Previous Page IconTo Previous Page
To Previous Page IconTo Previous Page
Loading...
64 TST-902 Product Manual Doc. 7750C
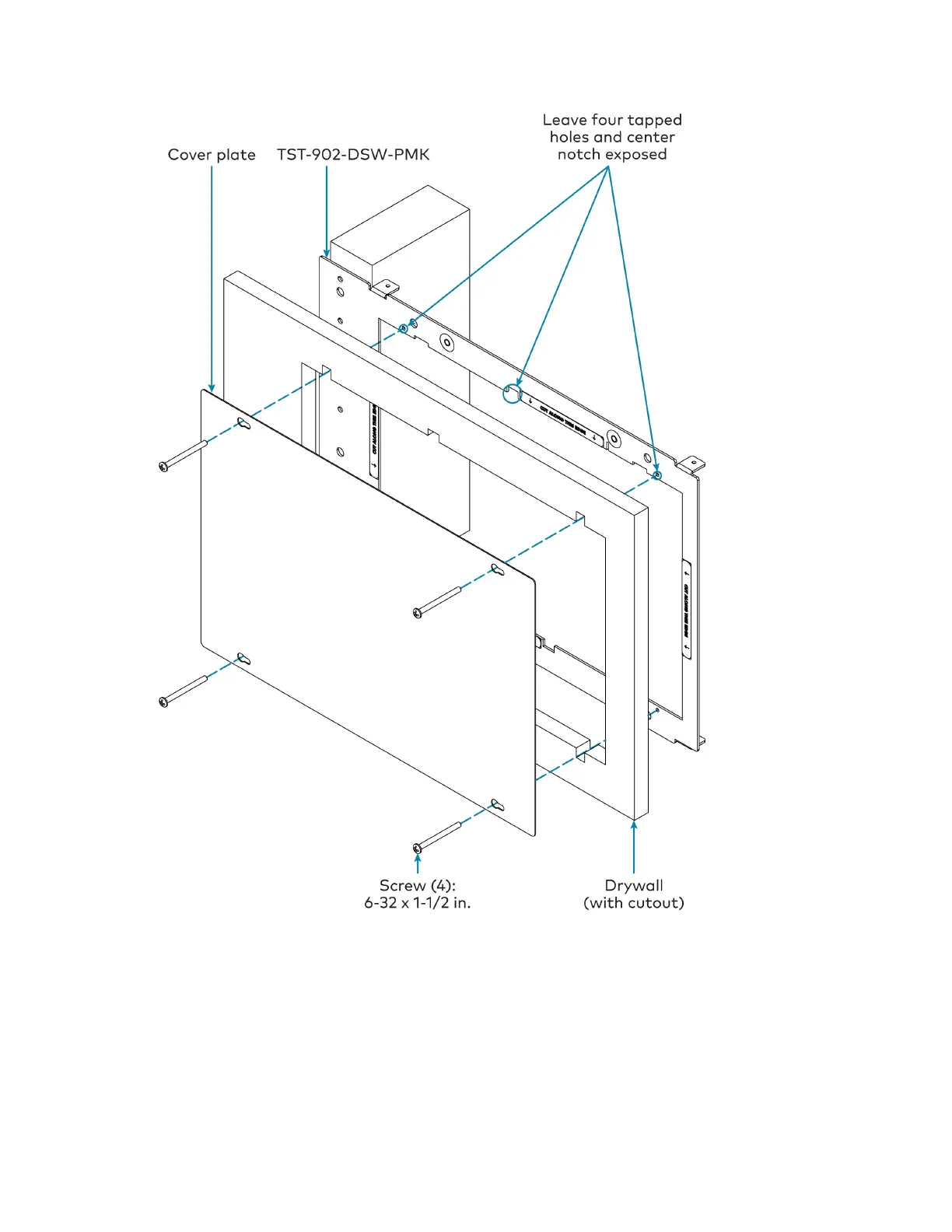
8. Remove the cover plate and 6-32x1-1/2in. screws (if used), and then install the
TST-902-DSWwall dock into the mounting bracket as described in Install the
TST-902-DSW on page 47 with the 6-32x1-1/2in. screws.

Table of Contents