EasyManua.ls Logo

Daher TBM 960 - Page 739

Daher TBM 960
957 pages
Print Icon
To Next Page IconTo Next Page
To Next Page IconTo Next Page
To Previous Page IconTo Previous Page
To Previous Page IconTo Previous Page
Loading...
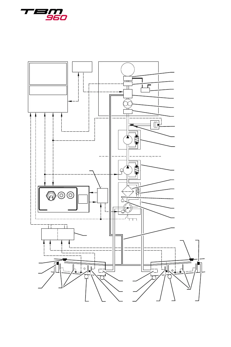
Figure 7.8.1 - Fuel System
FUEL
NOZZLES
FCU
POWERPLANT
L
R
OFF
A
35
M
M
A200
FUEL QUANTITIES
1
2
3
4
5
6
7
24
21
23
22
21
20
19
19
25
17
18
22
21
20
8
9
10
11
12
13
14
15
16
17
18
26
Firewall
C4280000AABAMA8000
FADEC
Avionics system
WARNINGS
ALARMS
CAUTION
20
U
ENGINE / FUEL
OF F
ON
AU TO
FUEL
SEL
AUX
BP
SHIFT
AUTO /MAN
Section 7
Description
Pilot's Information Manual
PIM TBM 960 - Edition 0
Rev. 00
Page 7.8.3
PIM - DO NOT USE FOR FLIGHT OPERATIONS

Table of Contents