EasyManua.ls Logo

Daikin VRV K - 1.12 Setting of Master Remote Controller

Daikin VRV K
170 pages
Print Icon
To Next Page IconTo Next Page
To Next Page IconTo Next Page
To Previous Page IconTo Previous Page
To Previous Page IconTo Previous Page
Loading...
Si-95 Test Operation
Test Operation Inverter K Series 55
<Control input specifications>
Input signal
Constant contact a
Input current is approx. 12 - 24 VDC, 10 mA per contact.
Use a micro-current contact for the relay contact.
(Max. 12 VDC, 1 mA)
Outside wiring specifications
Recommended electric wiring: Sheathed vinyl cord or cable 0.75
~1.25 mm
2
(double core)
Wiring length: Max. 150 m
Run separate from power line in order to prevent malfunction.
Installation positions
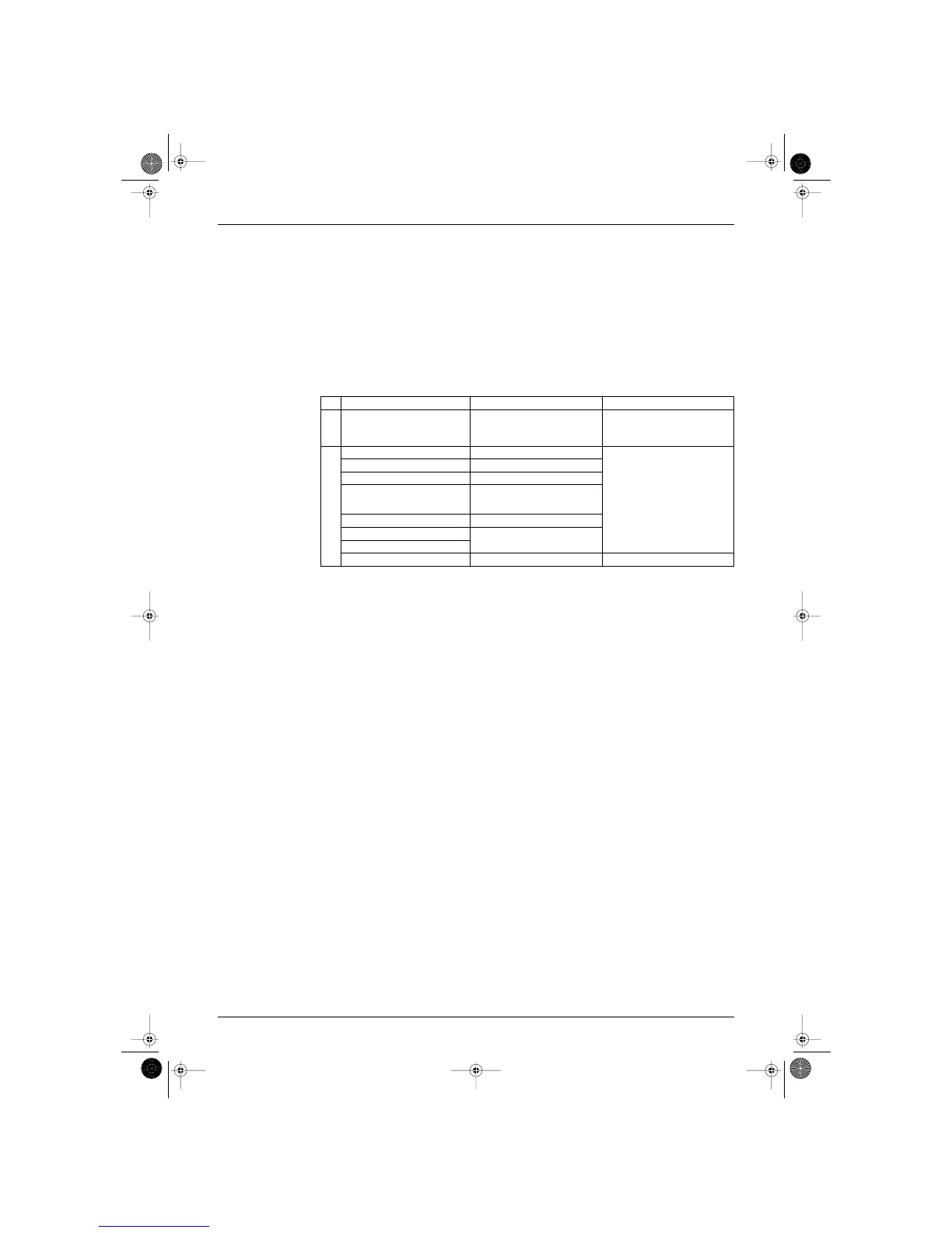
Model/series Installation box/plate Installation position
Outdoor
unit
Function unit, EXIII Not necessary Inside main unit's electric box
Indoor unit
FXYF~K KRP1A90 Regarding installation position,
see the page describing the
remote group control adaptor
FXYF~KA KRP1B98
FXYC~K(L) KRP1B96
FXYK~K
FXYS~K
FXYM~K
Not necessary
FXYH~K KRP1B93
FXYA~K Not necessary
FXYL(M)~K
BSV~K Not necessary Inside main unit's electric box
SI-95.BOOK Page 55 Friday, March 31, 2000 10:59 AM

Table of Contents

Related product manuals