EasyManua.ls Logo

Dinolift 240RXT - Levelling System of the Platform

Dinolift 240RXT
113 pages
Print Icon
To Next Page IconTo Next Page
To Next Page IconTo Next Page
To Previous Page IconTo Previous Page
To Previous Page IconTo Previous Page
Loading...
DINO 240RXT
43
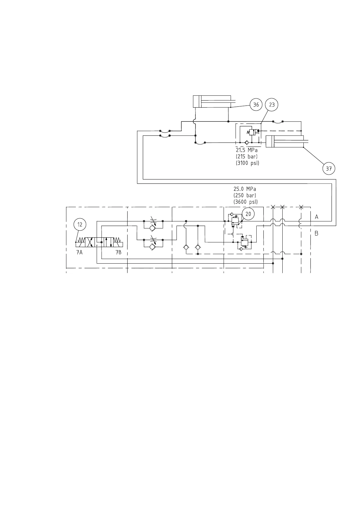
17.6 LEVELLING SYSTEM OF THE PLATFORM
- A so-called Slave Cylinder System is applied for levelling of the platform:
- the slave cylinder under the platform is controlled by a master cylinder
- the platform keeps its level position only if the valves in the system are tight
- the levelling system comprises the following parts:
36 Master cylinder
37. Slave cylinder
23. Load regulation valve
20 Double load regulation valve
12. Electric directional valve
- If the platform, viewed by the operator, drifts forwards, the reason can be:
1) a leak in the slave cylinder double load regulation valve (on the piston rod side) in the direction of
the electric directional valve (which is not tight)
2) an internal leakage in the cylinder
- If the platform, viewed by the operator, drifts backwards, the reason can be:
1) a leak in the load regulation valve (20) on the piston (bottom) side of the slave cylinder in the
direction of the electric directional valve (12) (which is not tight)
2) an internal leakage in the cylinder
The leak will cause drifting of the platform until the load regulation valve (23) under the platform id
closed.
The closing is caused by dropping of the pressure on the piston rod side to the opening ratio, which is
5:1
Air in the levelling system causes inaccuracy during levelling of the platform.
If the valves are not tight, refer to the service instructions in the chapter "load holding and load
regulation valves"
Settings of the load regulation valves:
- the opening pressure of the double load regulation valves (20) is 25 MPa (250 bar)
- the opening pressure of the load regulation valve (23) under the platform is 21.5 MPa (215 bar)
Do not change the preset values.

Table of Contents

Other manuals for Dinolift 240RXT

Related product manuals