EasyManua.ls Logo

Dover HEIL DuraPack 5000 - Throttle Advance - Vmack Engine - 272-1818-129

Dover HEIL DuraPack 5000
686 pages
Print Icon
To Next Page IconTo Next Page
To Next Page IconTo Next Page
To Previous Page IconTo Previous Page
To Previous Page IconTo Previous Page
Loading...
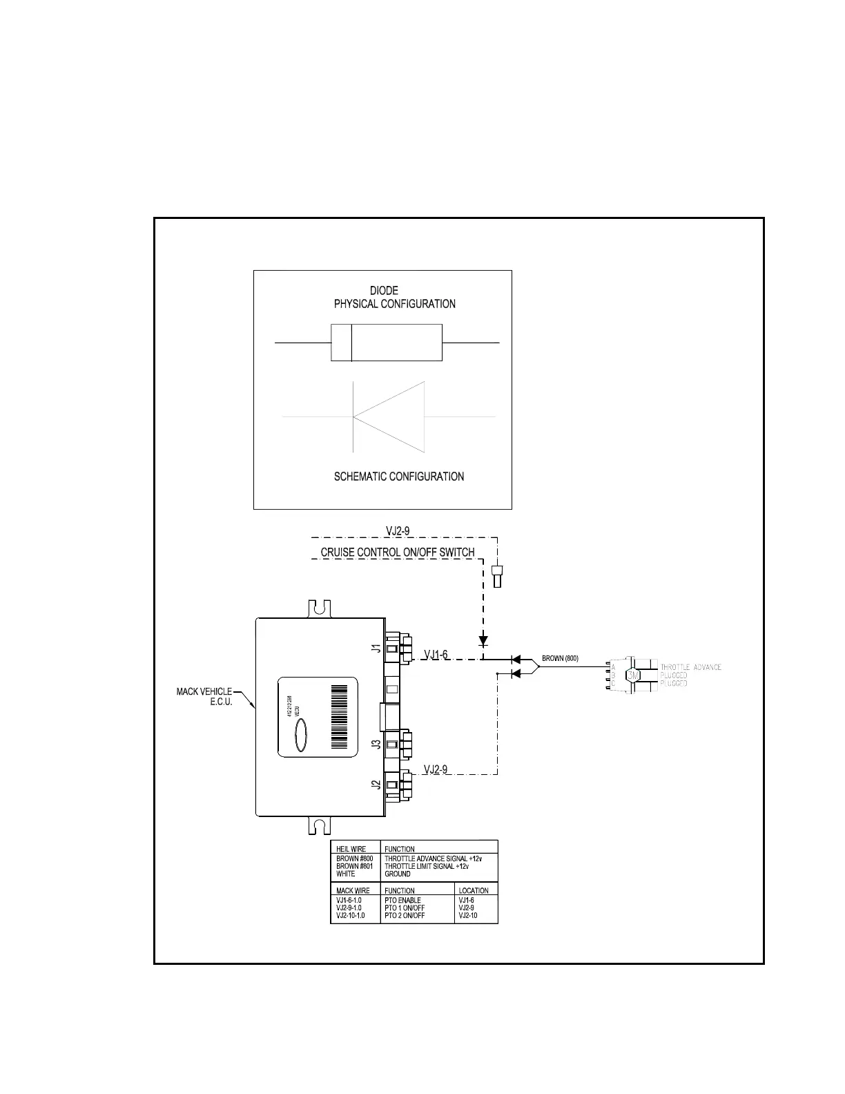
THROTTLE ADVANCE for ELECTRONIC CONTROLLED
Vmack ENGINE
272-1818-129
4.7
M
a
c
k
©COPYRIGHT 2006, Heil Environmental
ISSUED JANUARY 2006

Table of Contents