EasyManua.ls Logo

Dräger P3U - Page 119

Dräger P3U
140 pages
Print Icon
To Next Page IconTo Next Page
To Next Page IconTo Next Page
To Previous Page IconTo Previous Page
To Previous Page IconTo Previous Page
Loading...
119
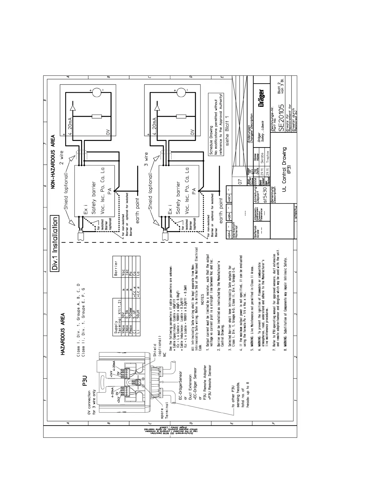
UL approval

Table of Contents

Related product manuals