EasyManua.ls Logo

Enertech VS Series - Section 8: Electrical Connections; Single and Three Phase Connections; Typical Thermostat Connections

Enertech VS Series
80 pages
Print Icon
To Next Page IconTo Next Page
To Next Page IconTo Next Page
To Previous Page IconTo Previous Page
To Previous Page IconTo Previous Page
Loading...
37
IOM, VS/VT Models, Rev A Enertech Global
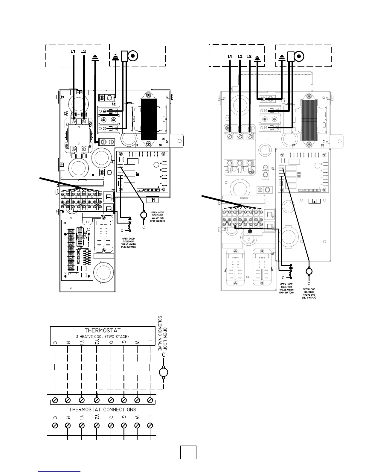
Single Phase Connections
Section 8: Electrical Connections
13S181−01NN
1
SHEET
Asm Cont (VS LT)
208−230/60/1
SIGNIFICANT
CHARACTERISTICS
DO NOT SCALE
DRAWING
Asm − Cont (VS LT) 208−230/60/1
w/PumpBlock w/HWG Relay,ECM
PART DESCRIPTION
PART NAME
ENGINEER
SPECIFICATION
DATE
Matt Tripp
10/3/2014
OF
2
PART NUMBER
13S18101NN
REV.
B
P
R
O
P
R
IET ARY AN
D
CO
N
FIDE NT IAL
THE INFORMATION CONTAINED IN THIS DRAWING IS THE SOLE
PROPERTY OF ENERTECH. ANY REPORDUCTION IN PART OR AS
A WHOLE, WITHOUT WRITTEN CONSENT, IS PROHIBETED.
E NE R T E CH GL OB A L ,
L L C
2506 S. ELM STREET
GREENVILLE, IL 62246
(618) 664-9010
REVISION HISTORY
REV DESCRIPTION
ECN
DATE
APPROVED
~ ADDED SNAP BUSHING
10/3/2014 MATT TRIPP
A ADDED TWO HOLES FOR WIRE CLIPS
14264−N03
10/15/2014
MATT TRIPP
B
UPDATE DRAWING FORMAT 14−315−N01
12/8/2014
MATT TRIPP
TERMINAL STRIP COVER REMOVED
WIRING ENTRY POINTS ON RIGHT FRONT CABINET CORNER POST
NOTES:
1. ALL BUSHINGS NEED TO BE PLACED ON THE CONTROL
BOX AND PLATE BEFORE OTHER ELECTRICAL COMPONENTS.
2. WIRING DIAGRAM
26
W
0720
1NN SHOULD BE REFERENCED
FOR THIS ASSEMBLY.
BACK VIEW
HIGH AND LOW VOLTAGE
ELECTRICAL CONNECTIONS
WIRE CLIPS
100828 100828
11490000001
11490000001
11490000001
11490000001
11490000001
1
2
3
L1 L2
Thermostat
External
Loop Pump
Power
Source
Connect to terminal A
Added Terminal A, Y1 notes 9-24-15 GT
Connect to terminal Y1
Three Phase Connections
Notes:
Drawings represent a typical installation using wiring input
knockouts marked on the outside of the unit corner post.
National and local electrical codes must be followed during
installation of this unit.
Use caution to avoid damaging the wiring and components
during installation.
Wiring shall be routed to avoid contact with other connec-
tions and temperature sensitive components.
Assure all connections are securely fastened and routed to
their proper locations.
Install the thermostat per the manufacturer’s instructions
provided with that unit.
FRONT VIEW
(WITHOUT TERMINAL STRIP COVER)
External
Loop Pump
L1 L2 L3
Power
Source
Thermostat
Connect to terminal A
Connect to terminal Y1
Added terminal A, Y1 notes 9-24-15 GT
2nd STAGE
Typical Thermostat Connections

Table of Contents

Related product manuals