EasyManua.ls Logo

Festo MPA-FB-VI - Page 103

Festo MPA-FB-VI
218 pages
Print Icon
To Next Page IconTo Next Page
To Next Page IconTo Next Page
To Previous Page IconTo Previous Page
To Previous Page IconTo Previous Page
Loading...
3. Installation
3-31
Festo P.BE-MPA-EN en 1108e
0
1
2
3
4
1
0
3
2
6
7
5
123
4
5
6
7
12
6
7
1)
unused addresses
1)
1)
1)
1)
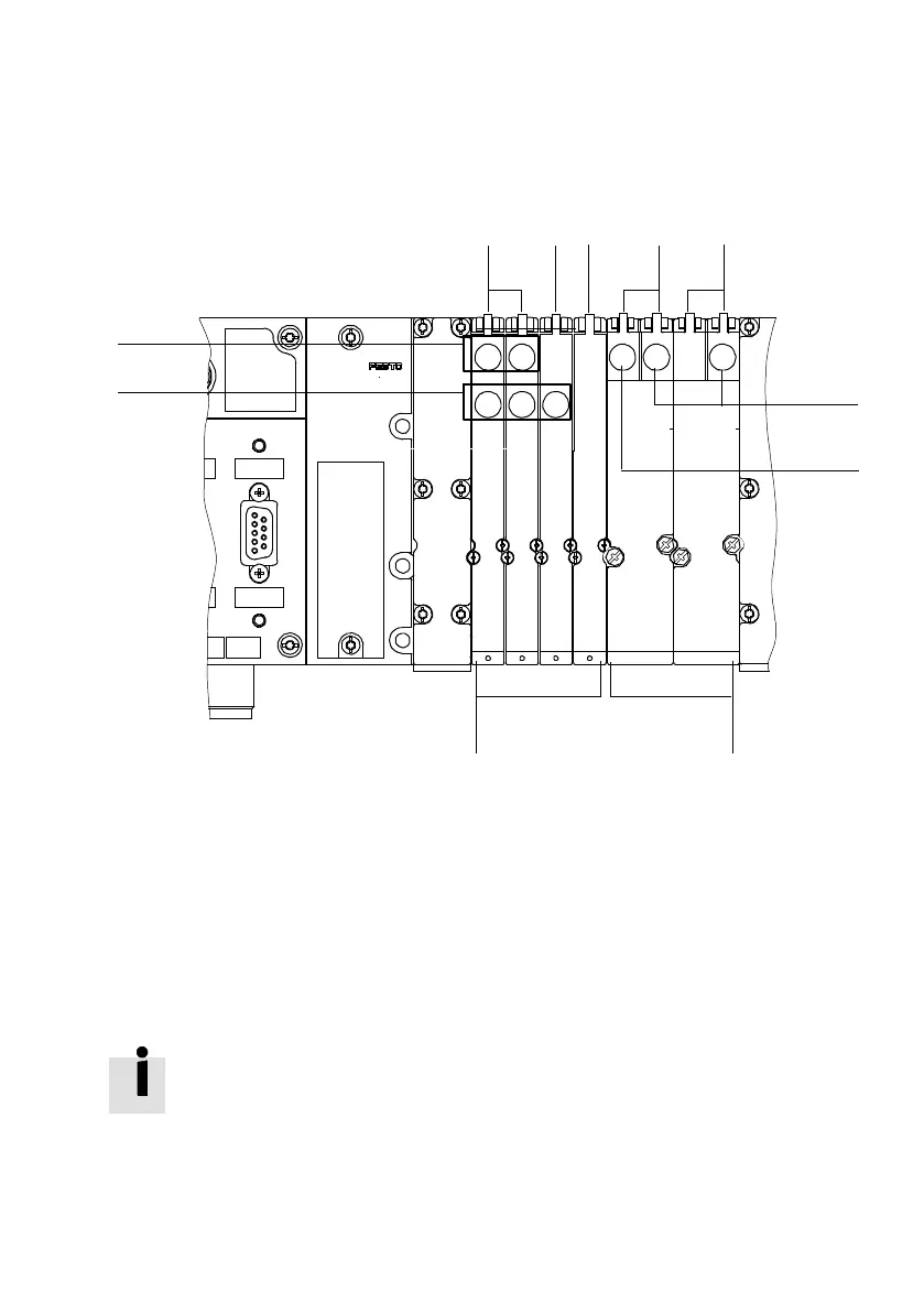
1 V alve sub-bases with two solenoid
coils
2 V alve sub-bases with one solenoid coil
3 Cover plate
4 Pneumatic modules (MPA2)
5 Pneumatic modules (MPA1)
6 Addresses of the solenoid coils 14
7 Addresses of the solenoid coils 12
Fig. 3/5: Example: Address assignment of an MPA-S valve terminal with CPX terminal
and 6 valve locations (top view)
Detailed instructions on addressing the pneumatic modules
of the MP A-S valve terminal with CPX terminal can be found in
the MPA-... electronics description or the corresponding
description for the bus node (see system description for your
CPX terminal, table “Descriptions of the CPX terminal”).

Table of Contents

Related product manuals